• Forager California
  • Nike
  • Adobe
  • OHIO Design
  • Bohlin Cywinski Jackson

Nicholas V. Ruiz

  • Forager California
  • Nike
  • Adobe
  • OHIO Design
  • Bohlin Cywinski Jackson

Adobe Seattle

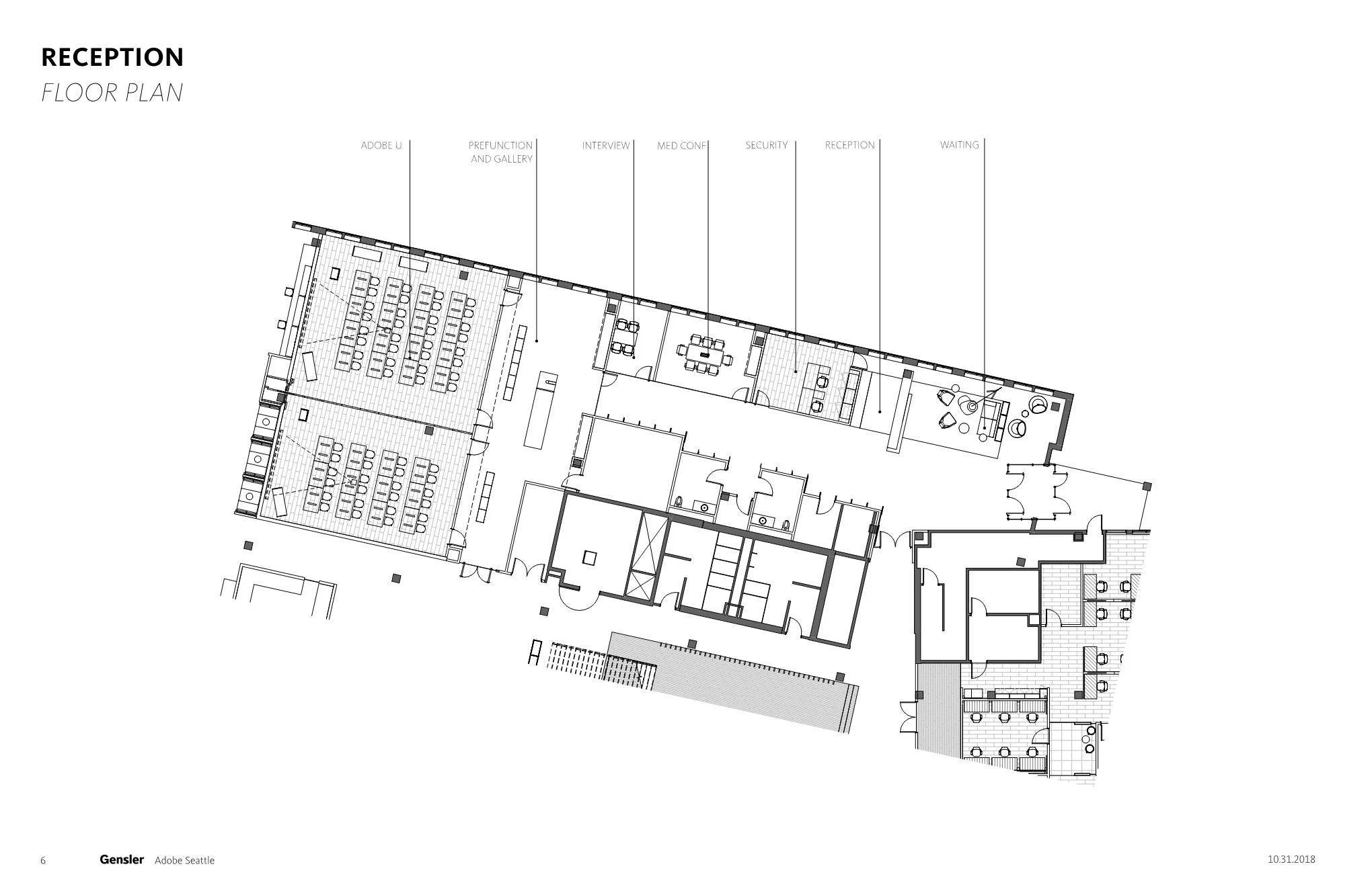
This vision for this project is to create a space that can accommodate growth, collaborative working environments, and innovation. This is an existing site that currently houses about 450 employees. The new project aims to reach 850 employees. The new space will include updated amenities which will create a hub of activity at the heart of the building. These amenities include a large cafe, wellness center and coffee bar. We will also include an interconnecting stair from the ground floor up to the roof deck.

The location of this site is right next to the river in Fremont. The building is in between two beautiful bridges which create a landmark for the growing tech community in this neighborhood. The design concept is to create lingering path like those found in nature to slow down the arrival into the workspace. This also helps to create moments of discovery, which keep the space feeling fresh and alive.

Our project goals are to create an inclusive, seamless, inspiring, responsible, and flexible space for Adobe’s employees to thrive.

Team

Adobe Workplace Experience, Gensler, Pivot Interiors, Cushman & Wakefield, Turner Construction

Adobe Seattle 10-3_Page_07.jpg
Adobe Seattle 10-3_Page_04.jpg
Adobe Seattle 10-3_Page_05.jpg
Adobe Seattle 10-3_Page_06.jpg
Adobe Seattle 10-3_Page_08.jpg
Adobe Seattle 10-3_Page_09.jpg
Adobe Seattle 10-3_Page_10.jpg
Adobe Seattle 10-3_Page_11.jpg
Adobe Seattle 10-3_Page_12.jpg
Adobe Seattle 10-3_Page_13.jpg
Adobe Seattle 10-3_Page_14.jpg
Adobe Seattle 10-3_Page_15.jpg
Adobe Seattle 10-3_Page_16.jpg
Adobe Seattle 10-3_Page_17.jpg
Adobe Seattle 10-3_Page_18.jpg
Adobe Seattle 10-3_Page_19.jpg
Adobe Seattle 10-3_Page_20.jpg
Adobe Seattle 10-3_Page_21.jpg
Adobe Seattle 10-3_Page_22.jpg
Adobe Seattle 10-3_Page_23.jpg
Adobe Seattle 10-3_Page_24.jpg
Adobe Seattle 10-3_Page_25.jpg
Adobe Seattle 10-3_Page_26.jpg
Adobe Seattle 10-3_Page_27.jpg
Adobe Seattle 10-3_Page_28.jpg
Adobe Seattle 10-3_Page_29.jpg
Adobe Seattle 10-3_Page_30.jpg
Adobe Seattle 10-3_Page_31.jpg
Adobe Seattle 10-3_Page_32.jpg
Adobe Seattle 10-3_Page_33.jpg
Adobe Seattle 10-3_Page_34.jpg
Adobe Seattle 10-3_Page_35.jpg
Adobe Seattle 11-7_Page_08.jpg
Adobe Seattle 11-7_Page_09.jpg
Adobe Seattle 11-7_Page_10.jpg
Adobe Seattle 11-7_Page_11.jpg
Adobe Seattle 11-7_Page_12.jpg
Adobe Seattle 11-7_Page_13.jpg
Adobe Seattle 11-7_Page_14.jpg
Adobe Seattle 11-7_Page_15.jpg
Adobe Seattle 11-7_Page_16.jpg
Adobe Seattle 11-7_Page_17.jpg
Adobe Seattle 11-7_Page_18.jpg
Adobe Seattle 11-7_Page_19.jpg
Adobe Seattle 11-7_Page_20.jpg
Adobe Seattle 11-7_Page_21.jpg
Adobe Seattle 11-7_Page_22.jpg
Adobe Seattle 11-7_Page_23.jpg
Adobe Seattle 11-7_Page_24.jpg
Adobe Seattle 11-7_Page_25.jpg
Adobe Seattle 11-7_Page_26.jpg
Adobe Seattle 11-7_Page_27.jpg
Adobe Seattle 11-7_Page_28.jpg
Adobe Seattle 11-7_Page_29.jpg
Adobe Seattle 11-7_Page_30.jpg
Adobe Seattle 11-7_Page_31.jpg
Adobe Seattle 11-7_Page_32.jpg
Adobe Seattle 11-7_Page_33.jpg
Adobe Seattle 11-7_Page_34.jpg
Adobe Seattle 11-7_Page_35.jpg
Adobe Seattle 11-7_Page_36.jpg
Adobe Seattle 11-7_Page_39.jpg
Adobe Seattle 11-7_Page_40.jpg
Adobe Seattle 11-7_Page_41.jpg
Adobe Seattle 11-7_Page_42.jpg
Adobe Seattle 11-7_Page_43.jpg
Adobe Seattle 11-7_Page_44.jpg
Adobe Seattle 11-7_Page_45.jpg
Adobe Seattle 11-7_Page_46.jpg
Adobe Seattle 11-7_Page_47.jpg
Adobe Seattle 11-7_Page_48.jpg
Adobe Seattle 11-7_Page_49.jpg
Adobe Seattle 11-7_Page_52.jpg
Adobe Seattle 11-7_Page_53.jpg
Adobe Seattle 11-7_Page_54.jpg
Adobe Seattle 11-7_Page_55.jpg
Adobe Seattle 11-7_Page_56.jpg
Adobe Seattle 11-7_Page_57.jpg
Adobe Seattle 11-7_Page_58.jpg
Adobe Seattle 11-7_Page_59.jpg
Adobe Seattle 11-7_Page_60.jpg
Adobe Seattle 11-7_Page_61.jpg
Adobe Seattle 11-20_Page_03.jpg
Adobe Seattle 11-20_Page_04.jpg
Adobe Seattle 11-20_Page_05.jpg
Adobe Seattle 11-20_Page_06.jpg
Adobe Seattle 11-20_Page_07.jpg
Adobe Seattle 11-20_Page_08.jpg
Adobe Seattle 11-20_Page_09.jpg
Adobe Seattle 11-20_Page_10.jpg
Adobe Seattle 11-20_Page_11.jpg
Adobe Seattle 11-20_Page_12.jpg
Adobe Seattle 11-20_Page_13.jpg
Adobe Seattle 11-20_Page_14.jpg
Adobe Seattle 11-20_Page_15.jpg
Adobe Seattle 11-20_Page_16.jpg
Adobe Seattle 11-20_Page_17.jpg
Adobe Seattle 11-20_Page_18.jpg
Adobe Seattle 11-20_Page_19.jpg
Adobe Seattle 11-20_Page_20.jpg
Adobe Seattle 11-20_Page_21.jpg
Adobe Seattle 11-20_Page_22.jpg
Adobe Seattle 11-20_Page_23.jpg
Adobe Seattle 11-20_Page_24.jpg
Adobe Seattle 11-20_Page_25.jpg
Adobe Seattle 11-20_Page_26.jpg
Adobe Seattle 11-20_Page_27.jpg
Adobe Seattle 11-20_Page_28.jpg
Adobe Seattle 11-20_Page_29.jpg
Adobe Seattle 11-20_Page_30.jpg
Adobe Seattle 11-20_Page_31.jpg
Adobe Seattle 11-20_Page_32.jpg
Adobe Seattle 11-20_Page_33.jpg
Adobe Seattle 11-20_Page_34.jpg
Adobe Seattle 11-20_Page_35.jpg
Adobe Seattle 11-20_Page_36.jpg
ADOBE SEATTLE4.jpg
ADOBE SEATTLE.jpg
ADOBE SEATTLE5.jpg
ADOBE SEATTLE2.jpg
ADOBE SEATTLE3.jpg
ADOBE SEATTLE9.jpg
ADOBE SEATTLE10.jpg
ADOBE SEATTLE14.jpg
ADOBE SEATTLE16.jpg
ADOBE SEATTLE15.jpg
ADOBE SEATTLE11.jpg
ADOBE SEATTLE12.jpg
ADOBE SEATTLE13.jpg

Powered by Squarespace.