• Forager California
  • Nike
  • Adobe
  • OHIO Design
  • Bohlin Cywinski Jackson

Nicholas V. Ruiz

  • Forager California
  • Nike
  • Adobe
  • OHIO Design
  • Bohlin Cywinski Jackson

Lily Lake Residence

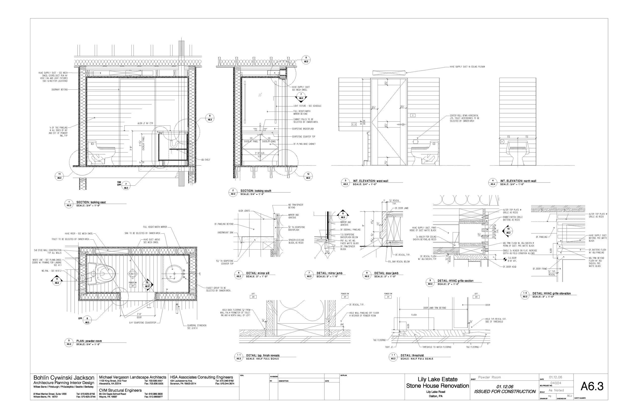
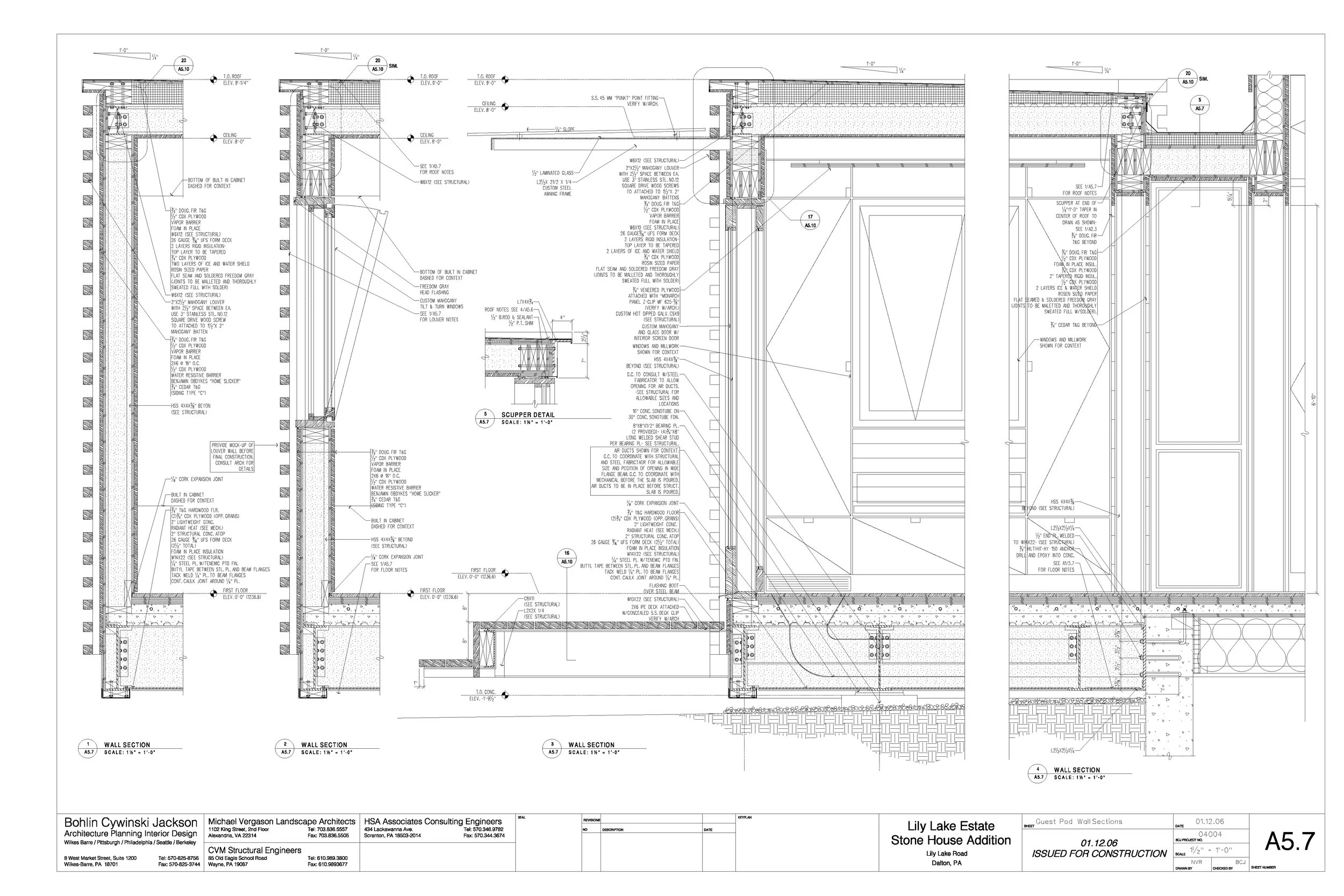
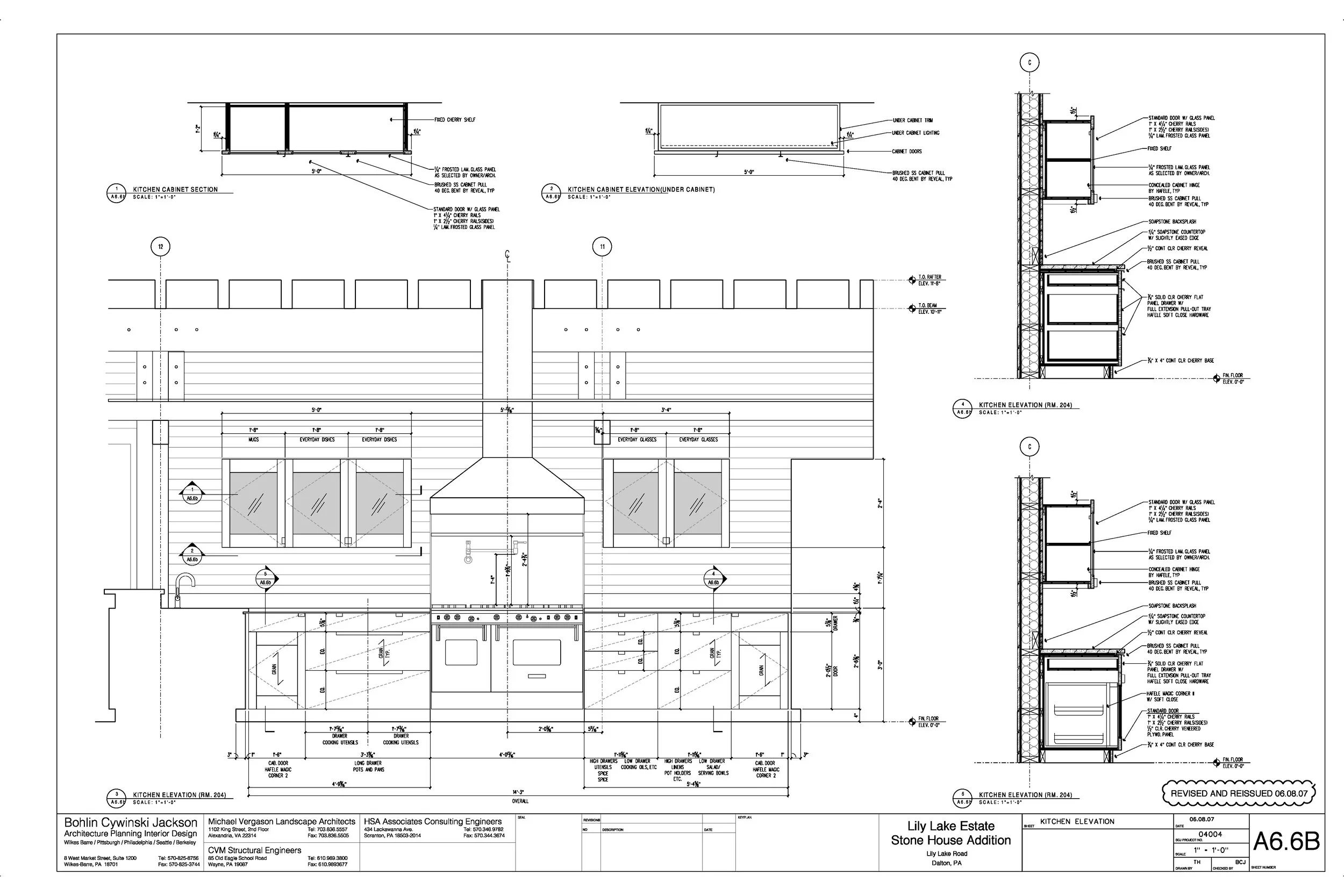
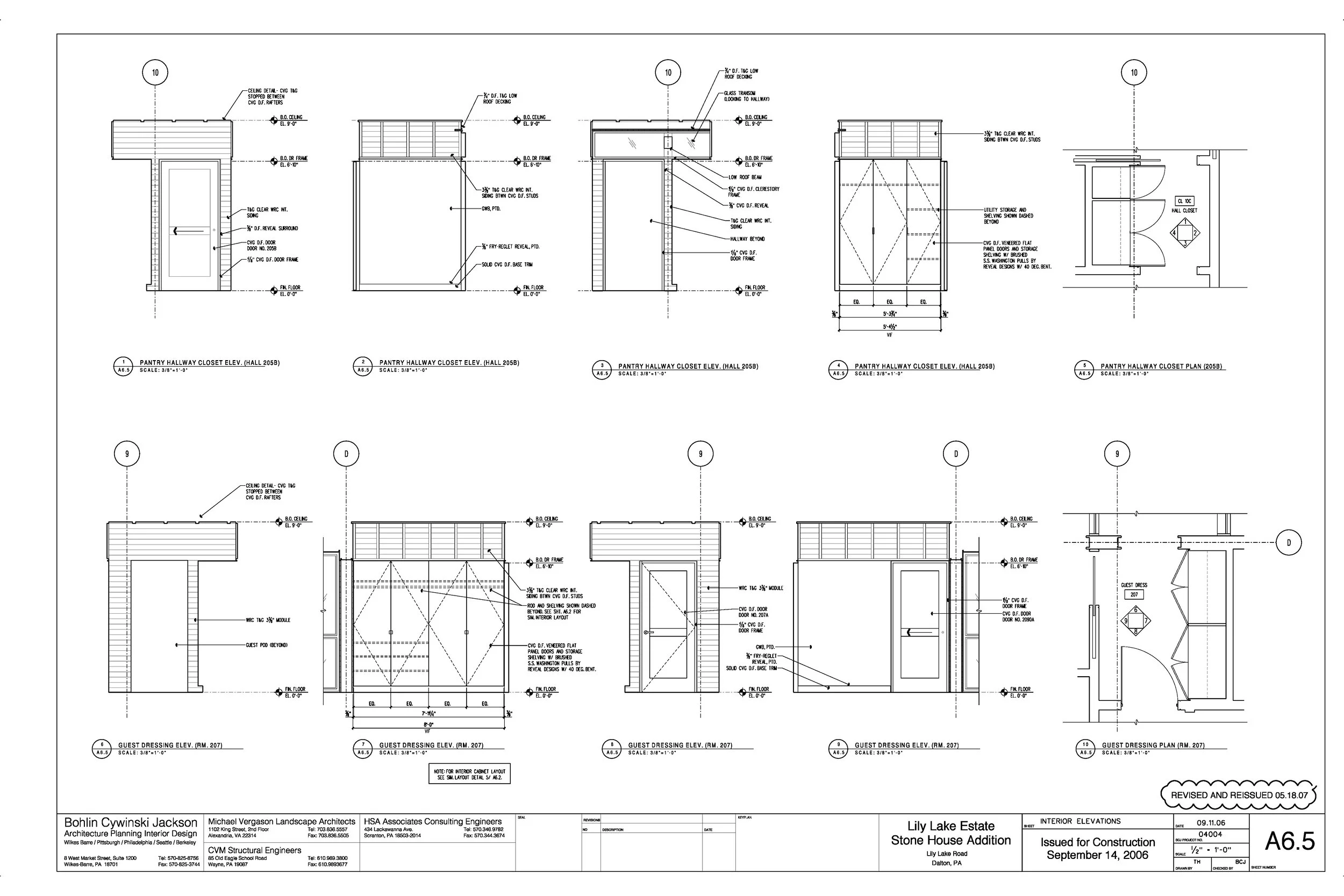
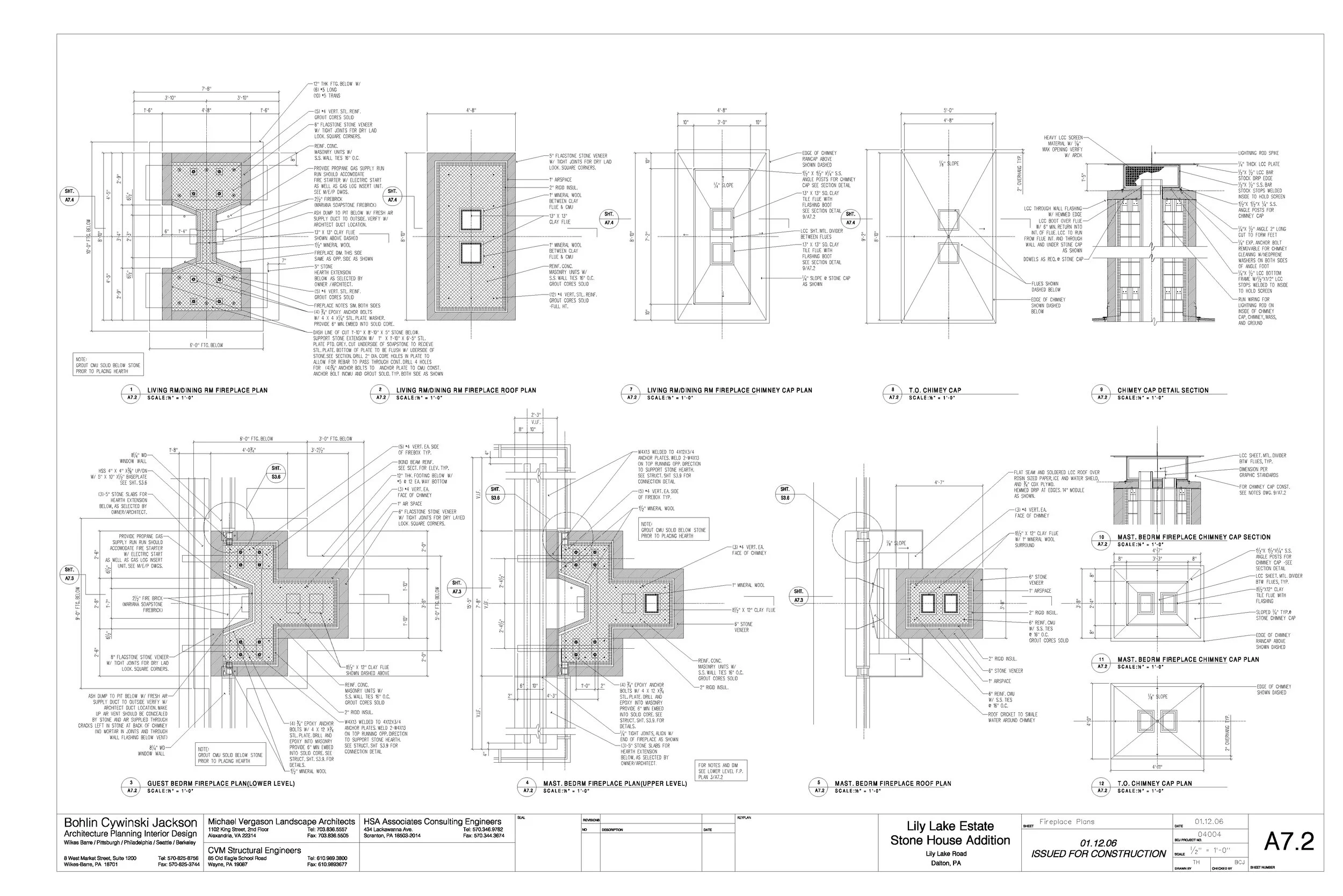
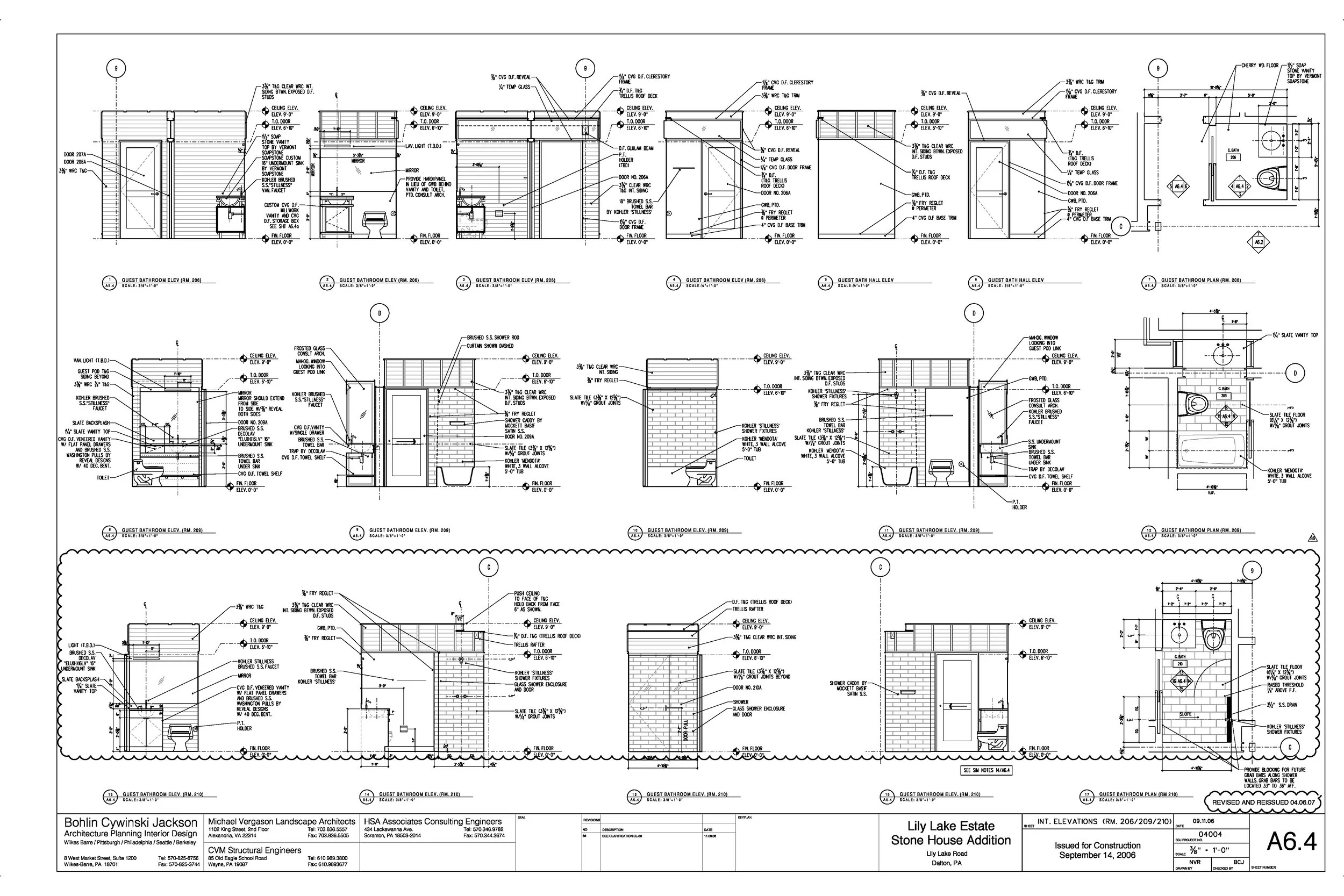
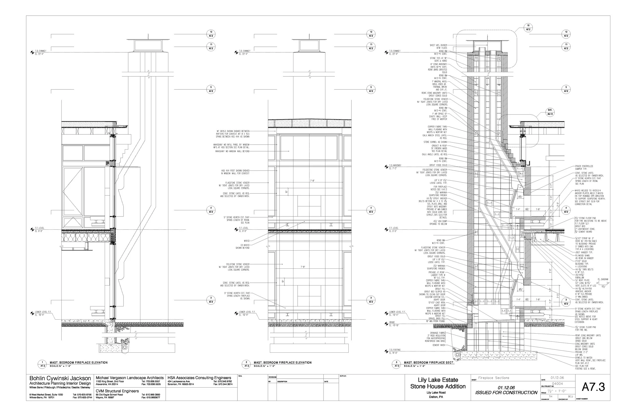
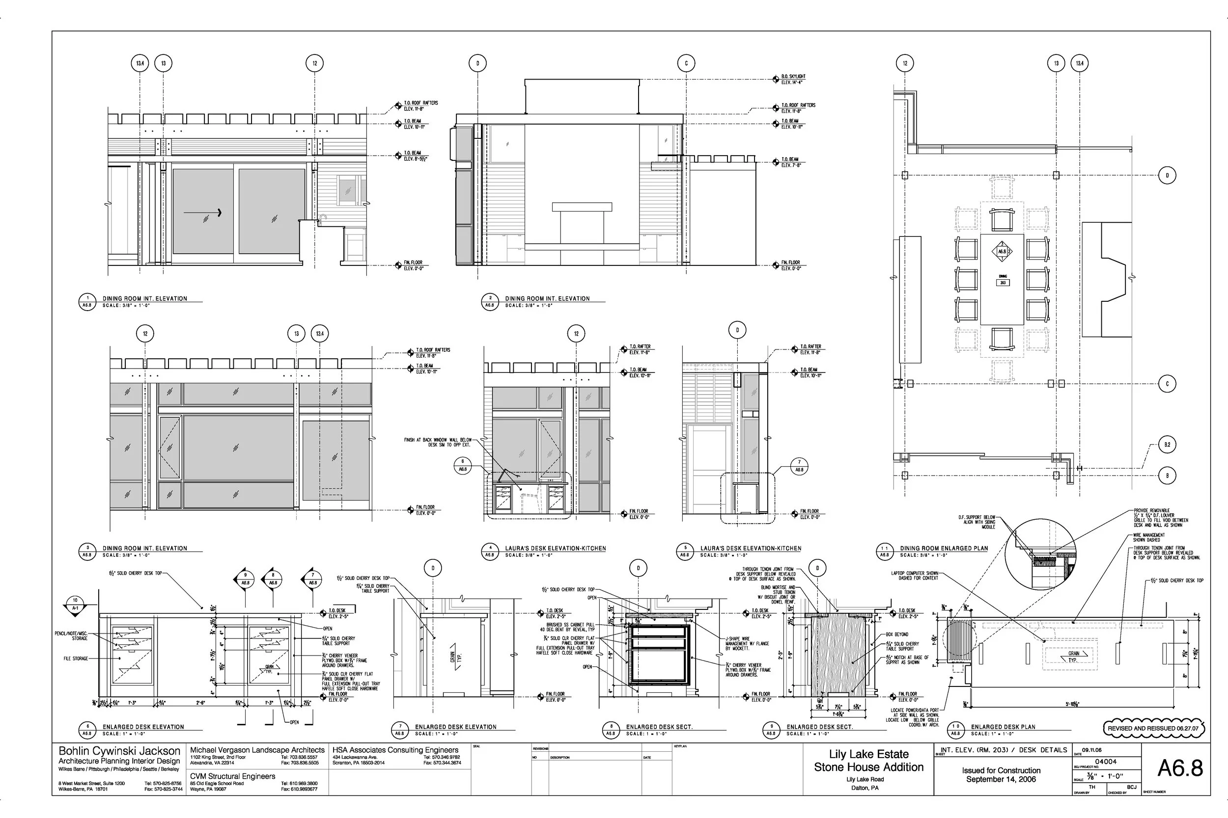
Situated in the Northeastern Pennsylvania agrarian landscape, this residence is rooted in its circumstance of rolling fields, high grass, dry laid stone walls, farm structures and lakes; sited on a farm dating from the early 1900s.

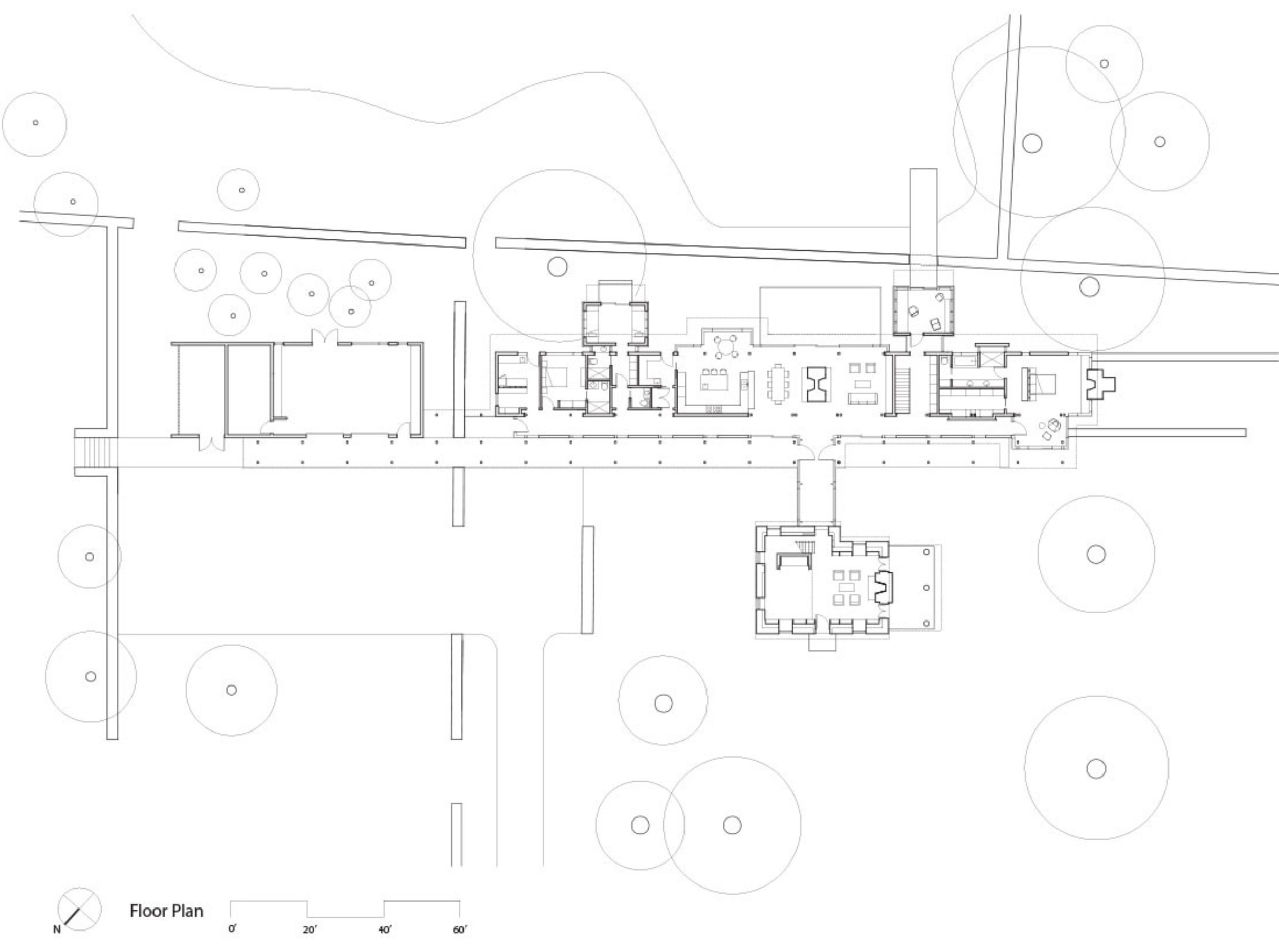
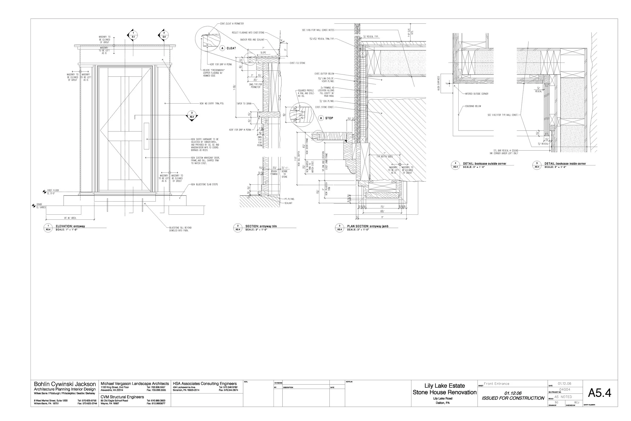
An existing stone cottage sits near the upper corner of one field, among several mature trees. The owners wished to live in a residence that incorporated the existing stone cottage as well as sensitively relating to the special nature of the surrounding landscape.

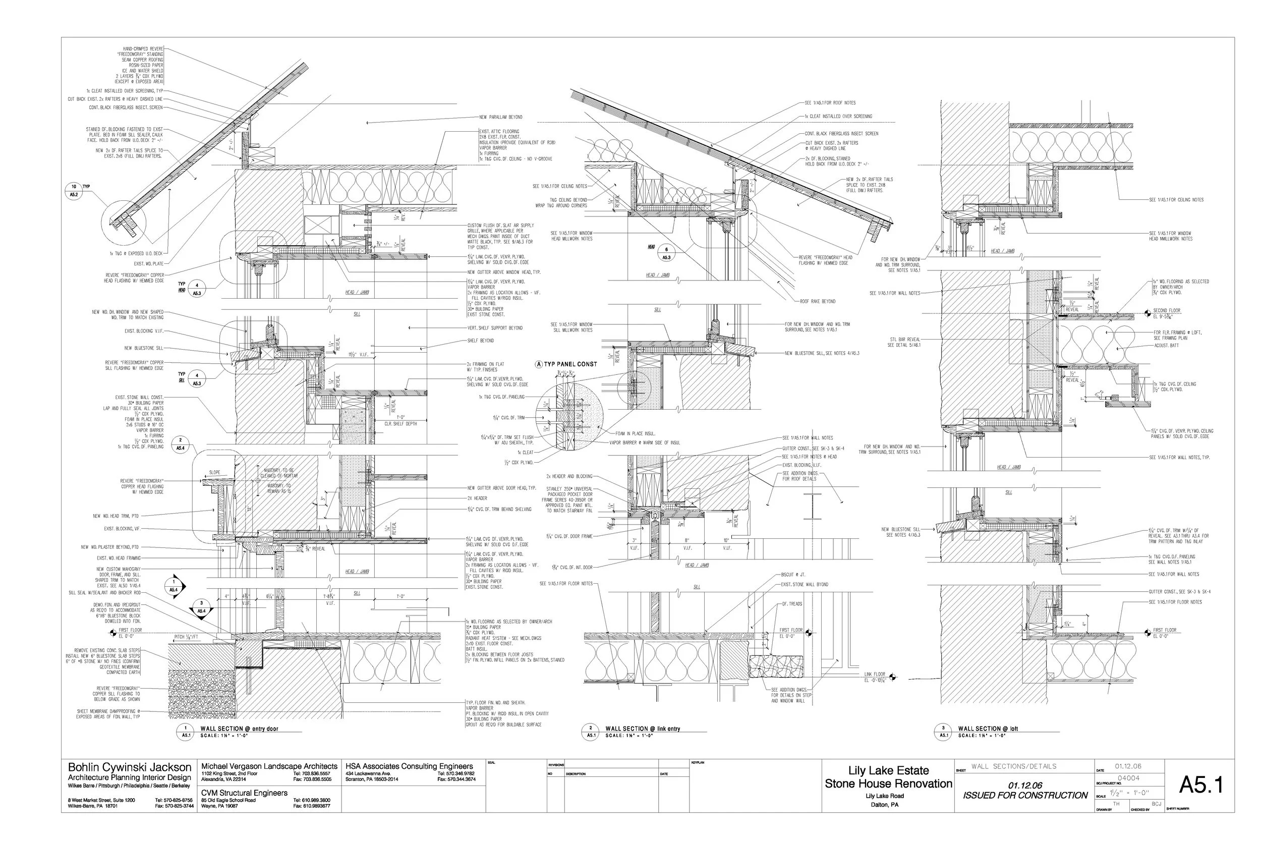
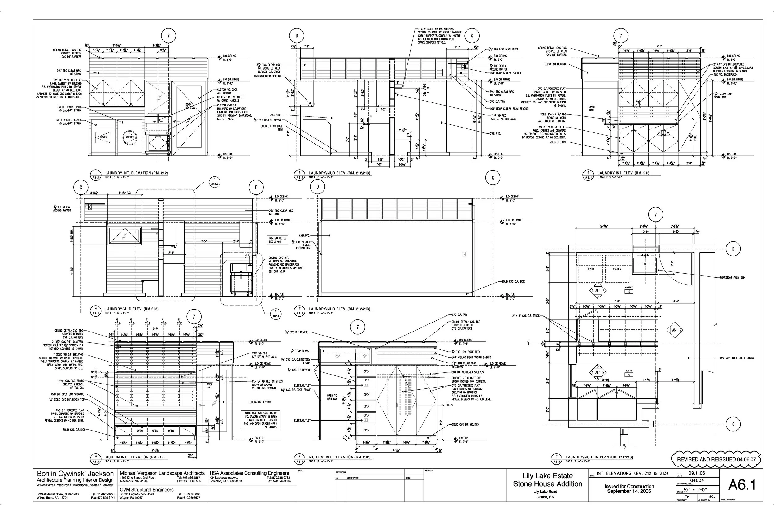
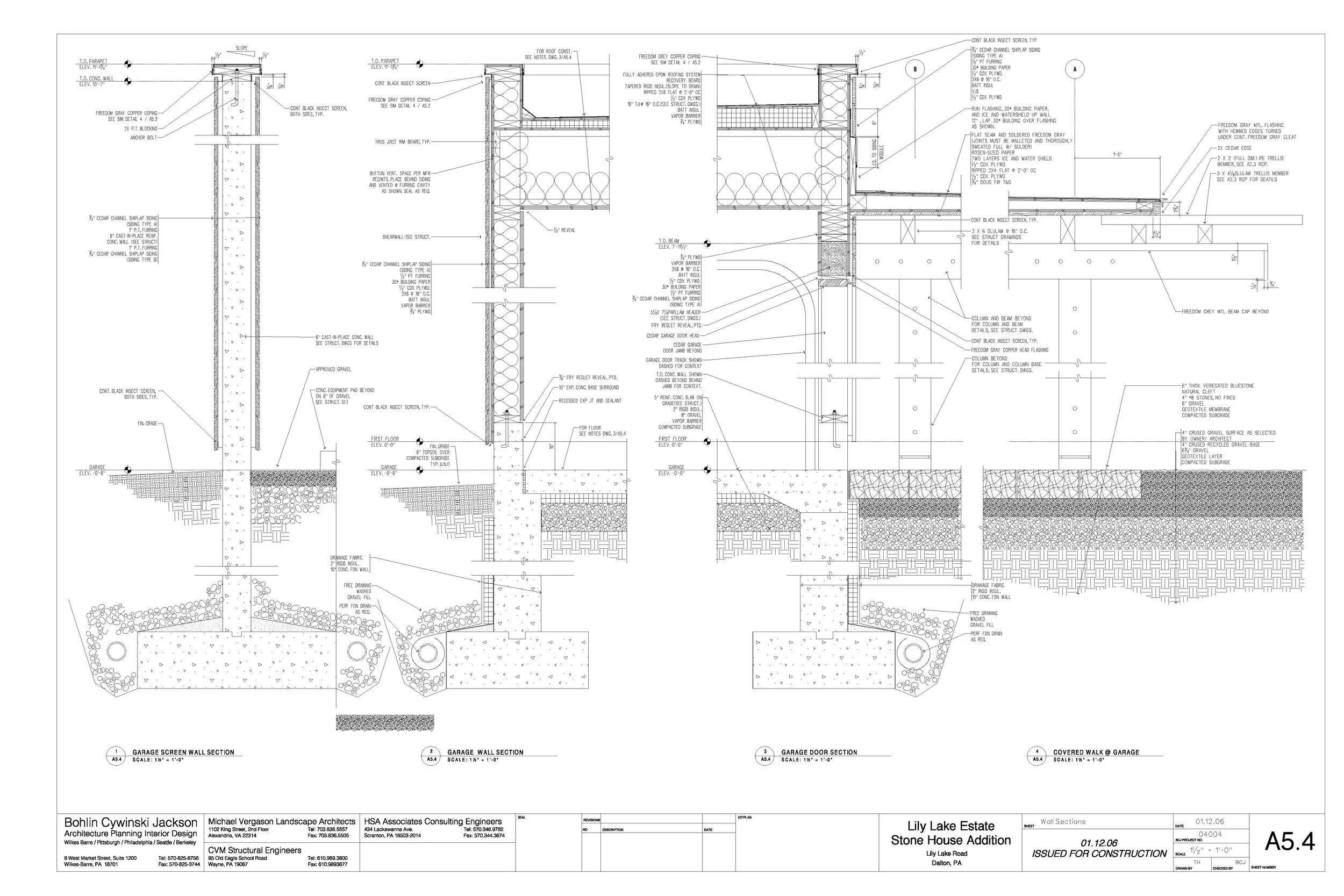
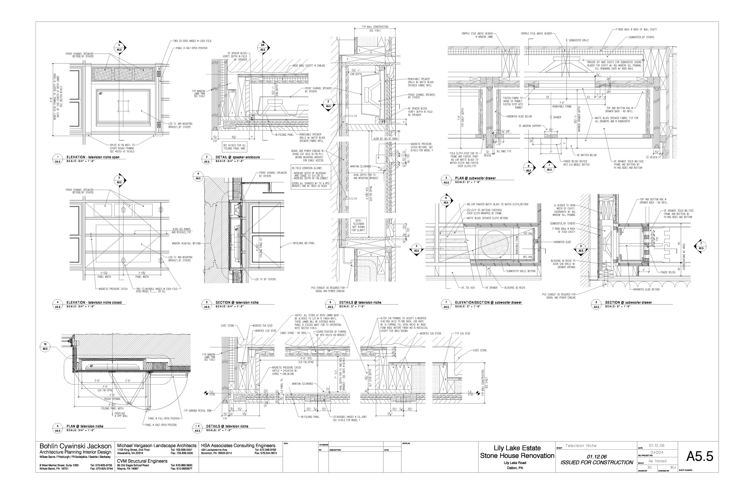
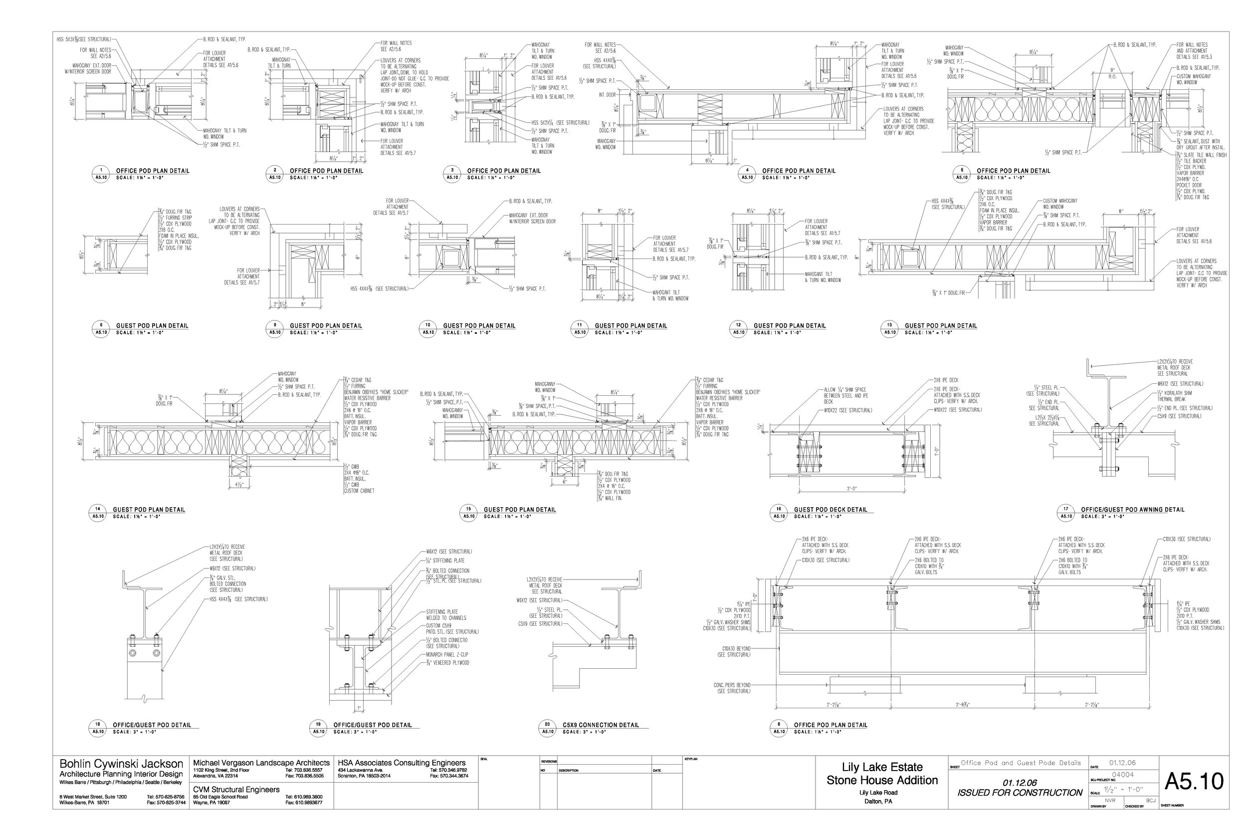
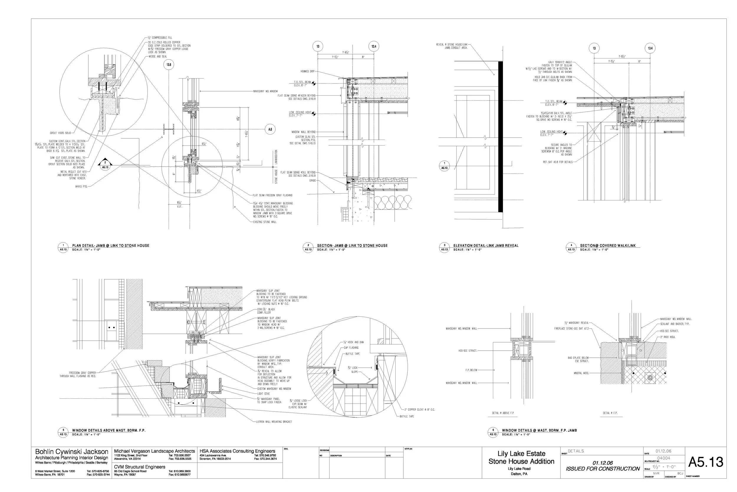
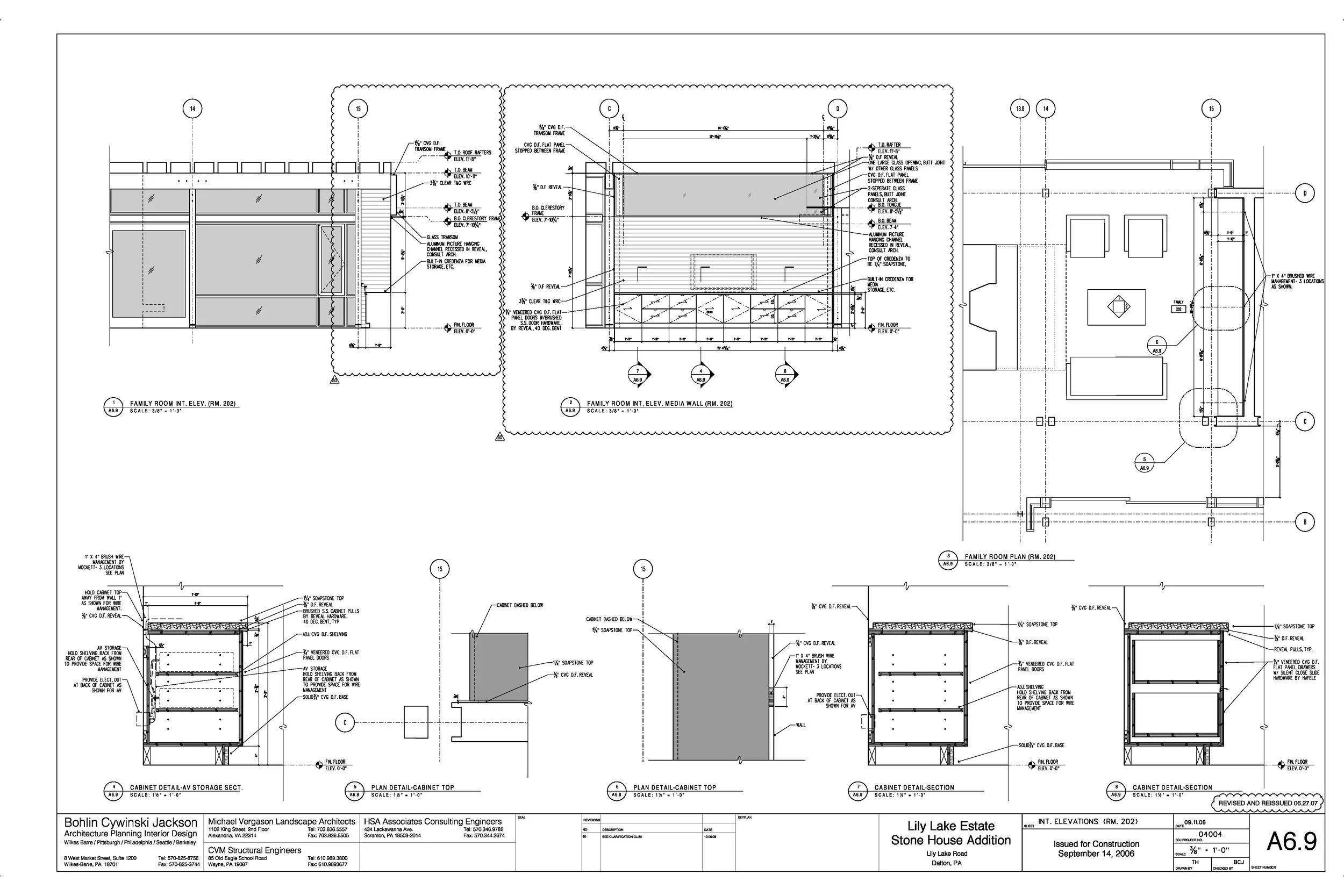
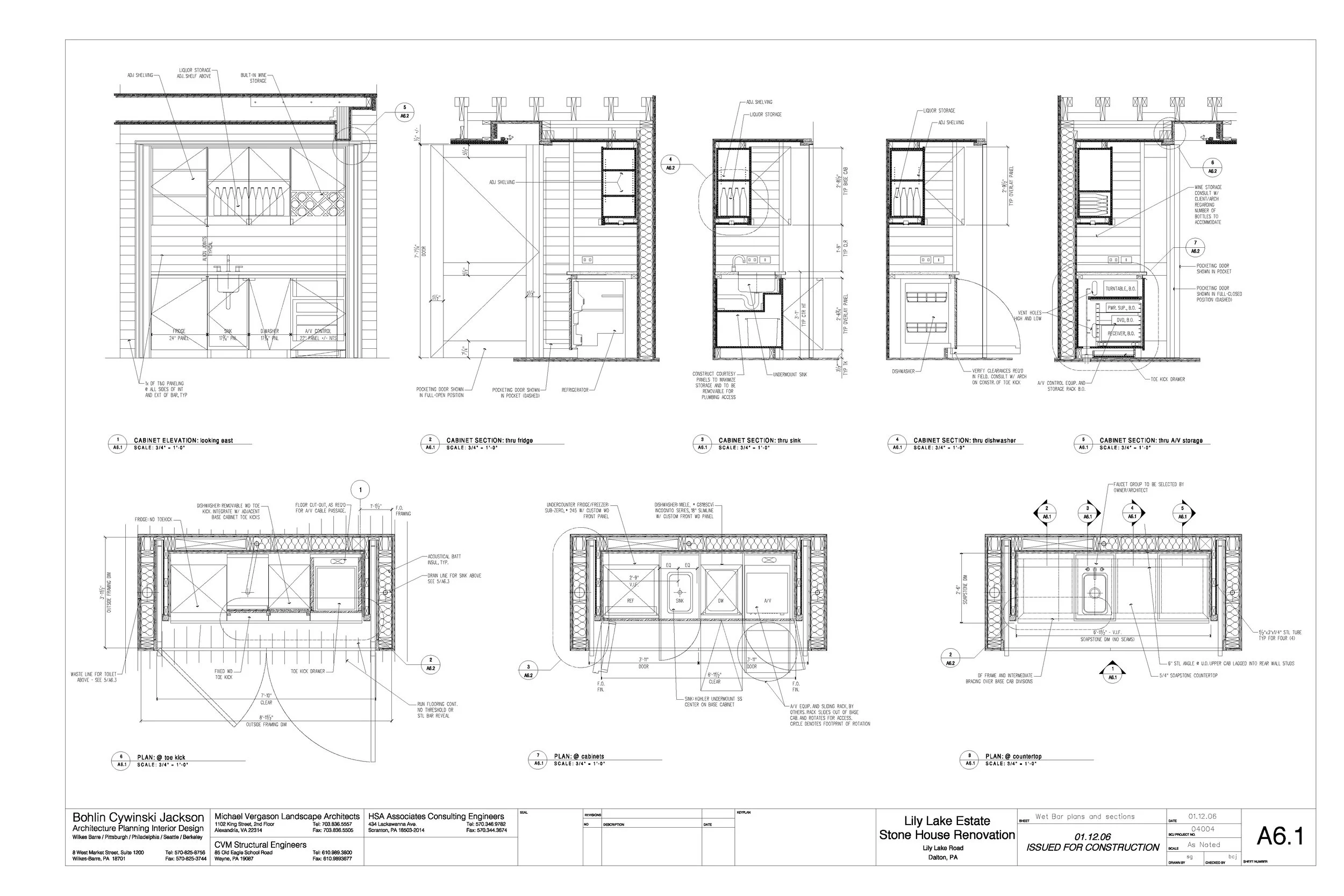
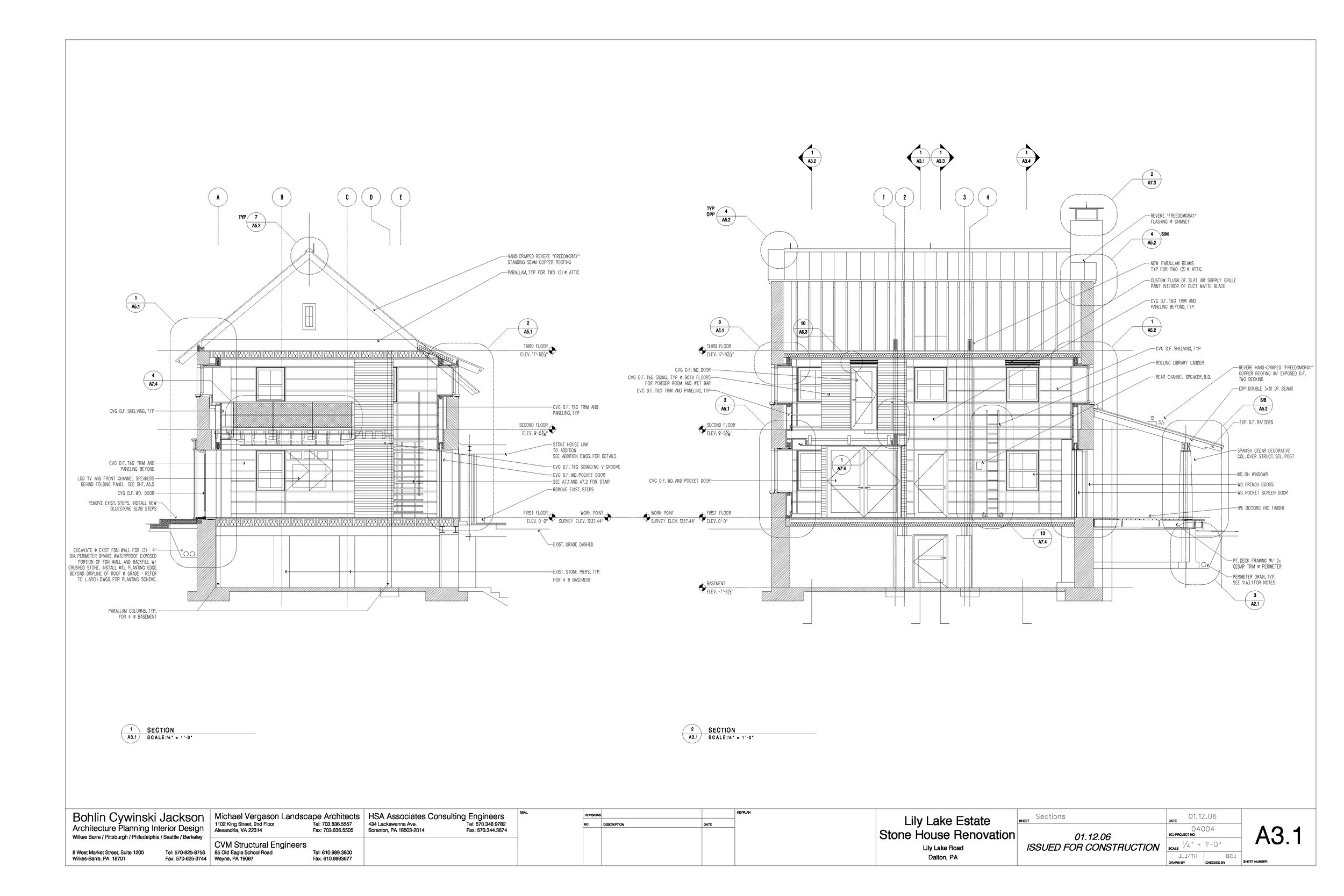
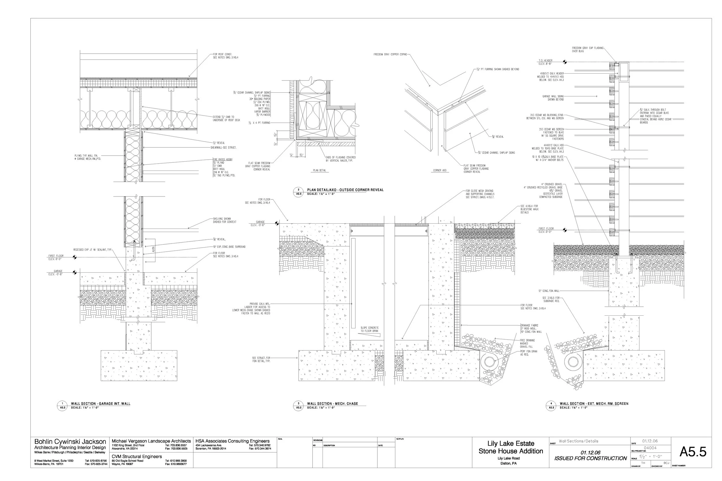
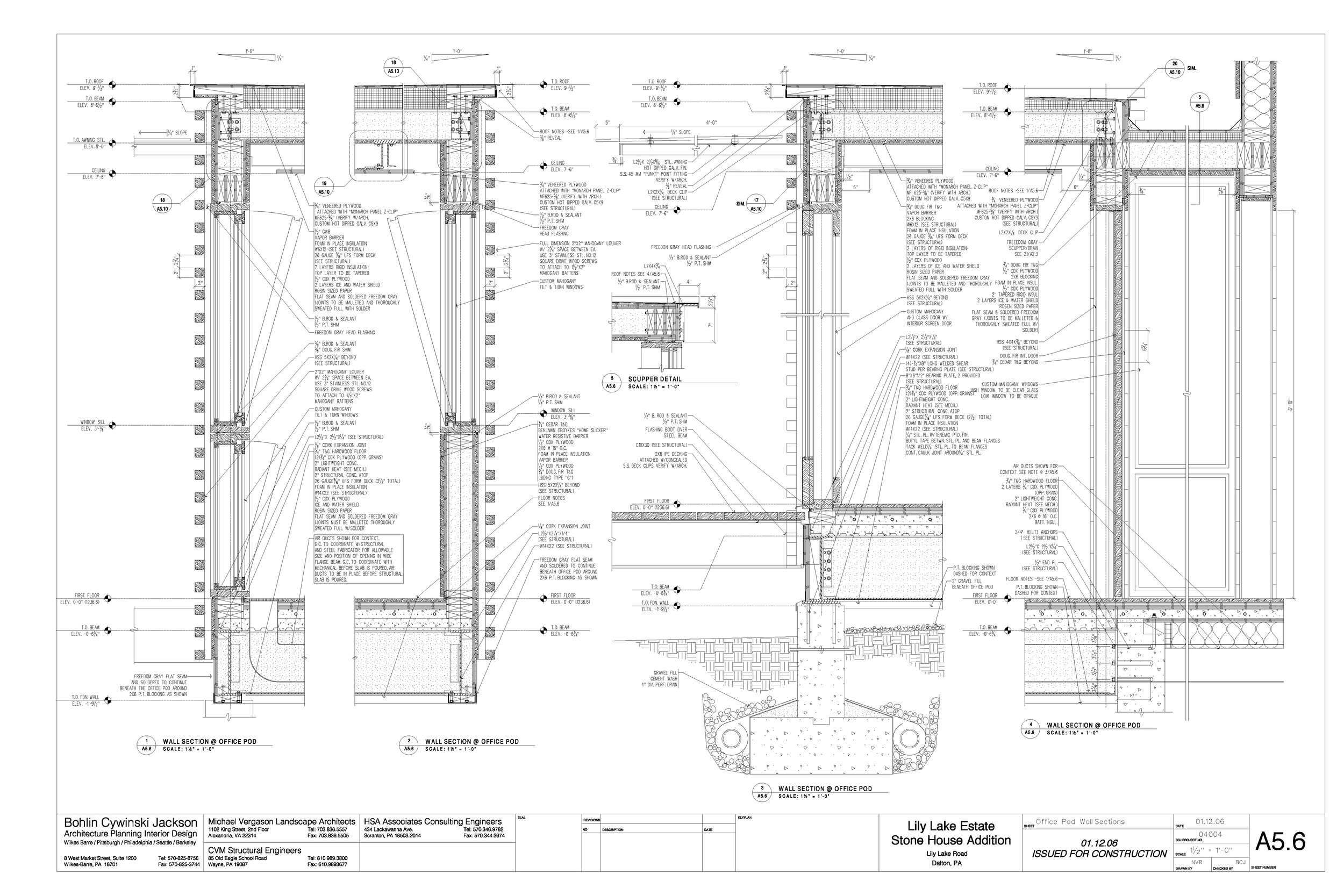
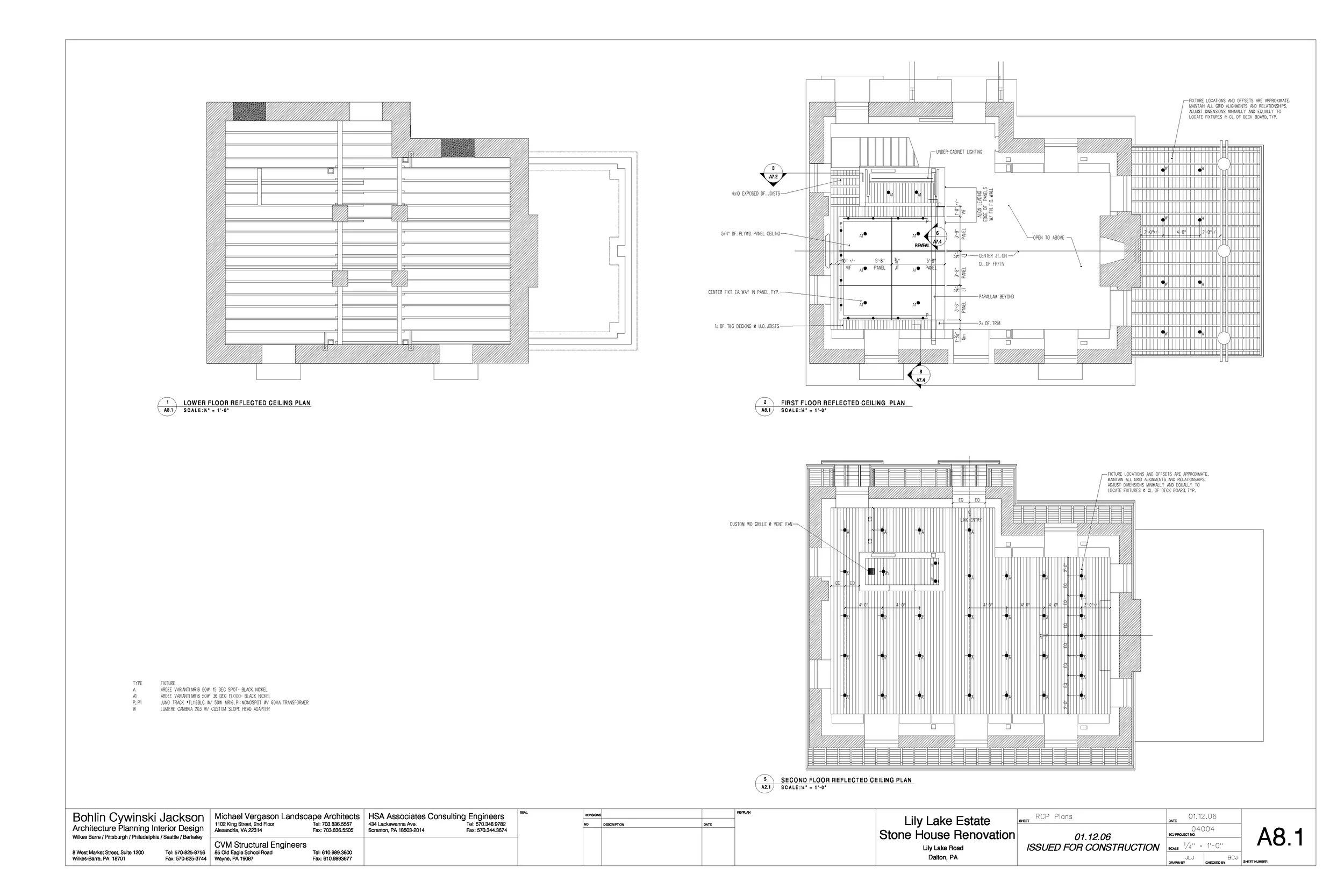
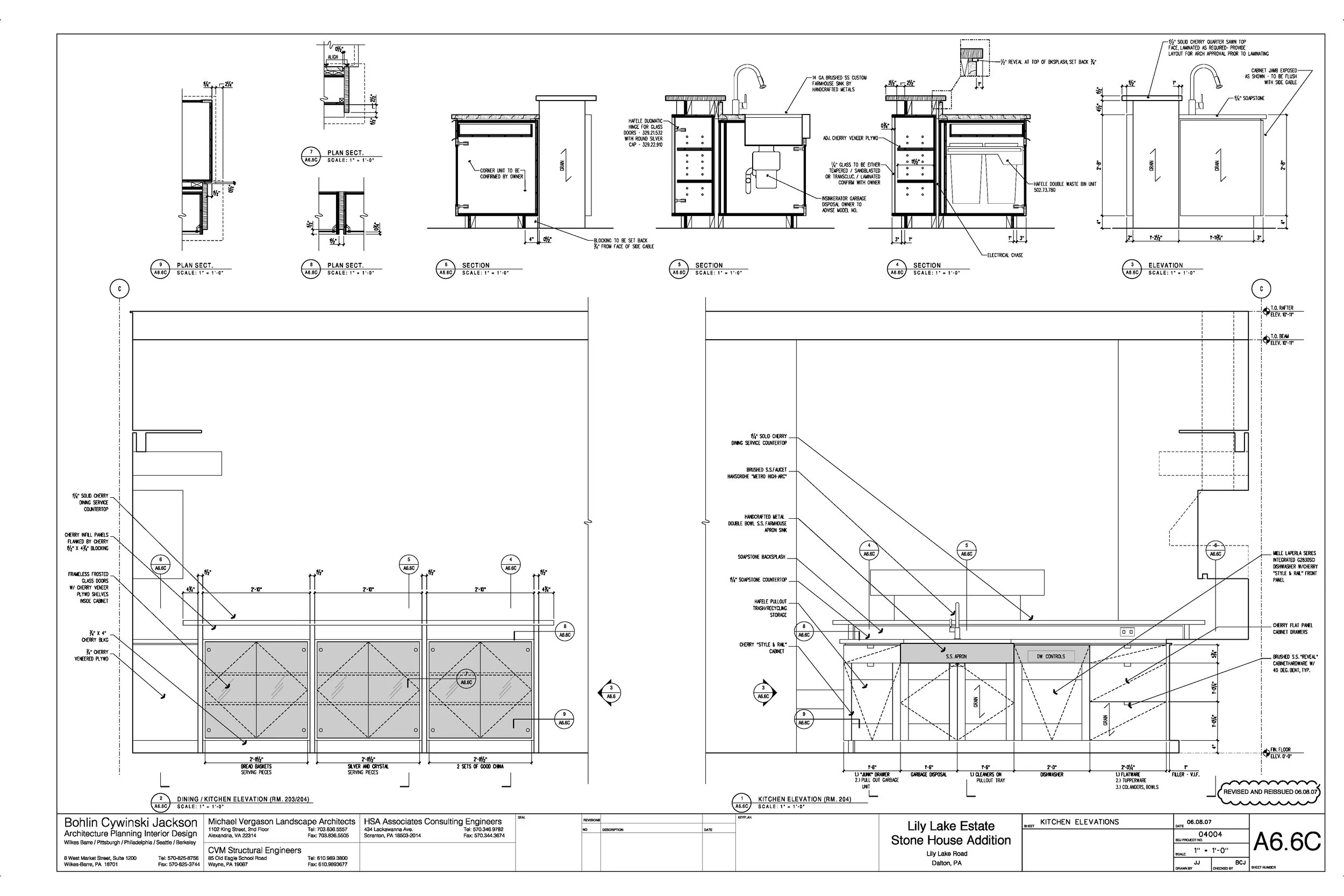
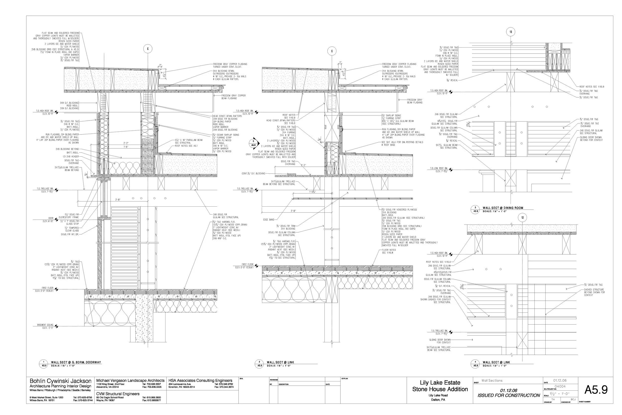
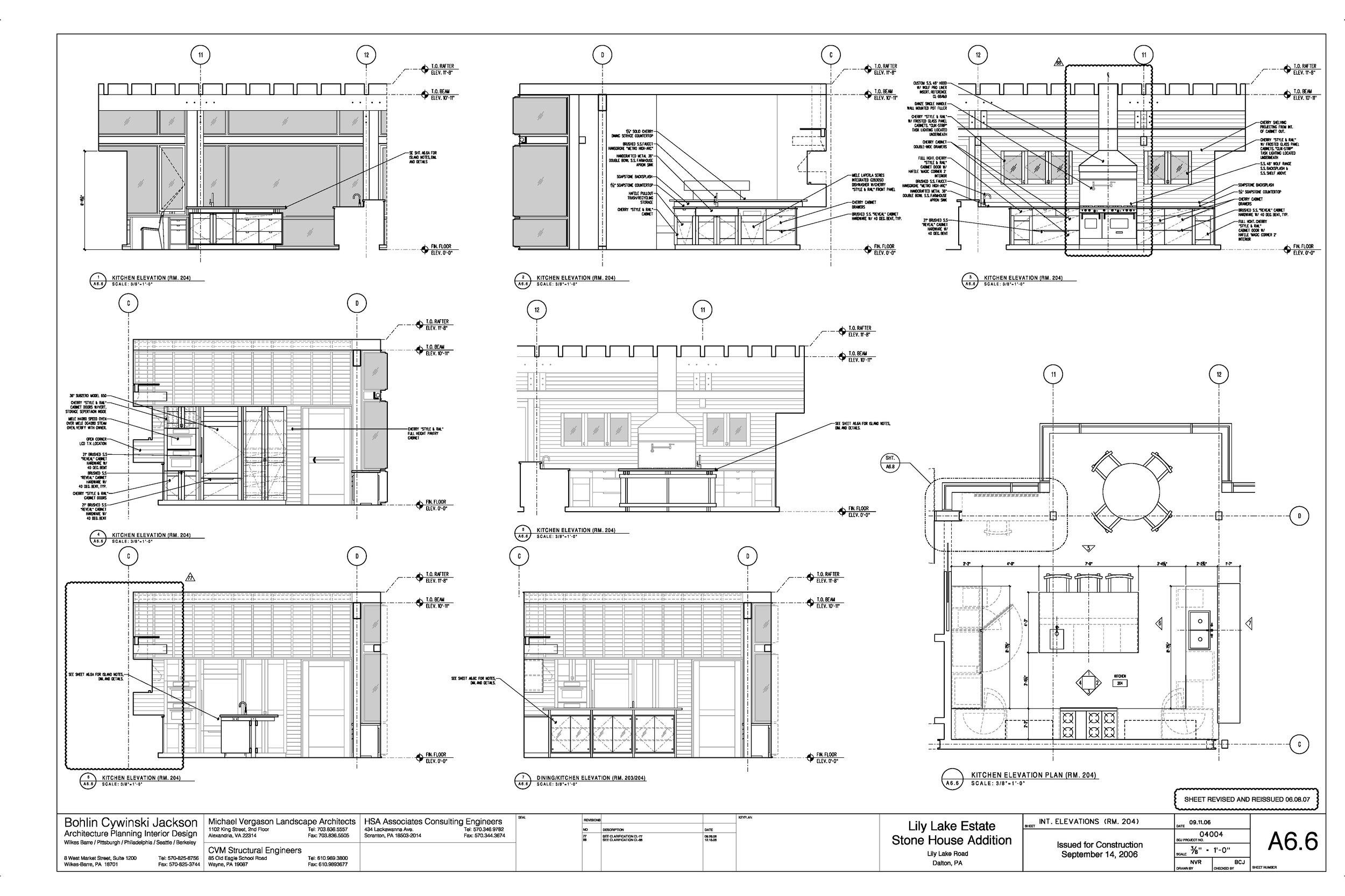
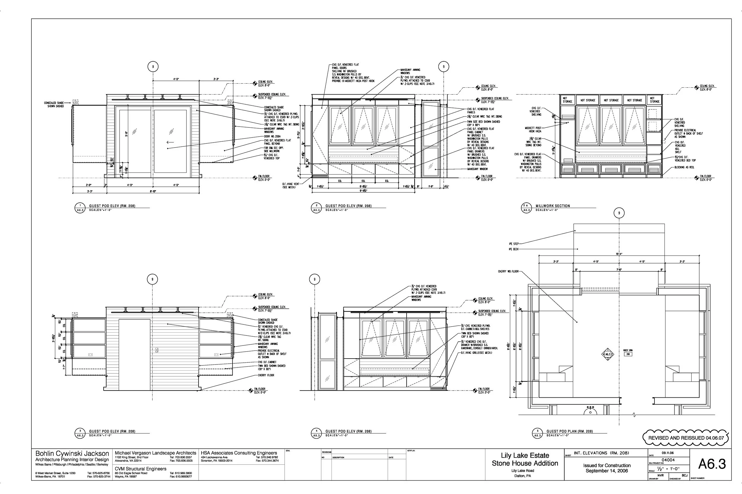
The modest stone cottage has been preserved. A new linear wooden structure is situated between the stone cottage and a pond; parallel to an existing stone wall. The milled timber structure has been rigorously organized and detailed. This structure does not impose on the stone cottage; rather it is pulled free and linked via a delicate glass passage. A library and small loft reside in the stone cottage, while the garage, living and sleeping areas are contained within the new wooden structure.

The Lily Lake Residence is a thoughtful modernist intervention into an evocative agrarian landscape that is both sensitive and exacting.

Team

Bohlin Cywinski Jackson, Breig Brothers Construction

LL 001.jpeg
a11__site_fin_v2-01.jpg
LL 011.jpeg
LL 005.jpeg
LL 003.jpeg
364.029.jpg
LL 002.jpeg
LL 012.jpeg
LL 009.jpeg
LL 006.jpeg
364.012.jpg
LL 004.jpeg
364.018.jpg
364.025.jpg
364.043.jpg
LL 008.jpeg
364.039.jpg
LL 007.jpeg
XXX.jpg
364.037altered.jpg
lily lake set_Page_02.jpg
lily lake set_Page_03.jpg
lily lake set_Page_04.jpg
lily lake set_Page_05.jpg
lily lake set_Page_06.jpg
lily lake set_Page_07.jpg
lily lake set_Page_08.jpg
lily lake set_Page_09.jpg
lily lake set_Page_10.jpg
lily lake set_Page_11.jpg
lily lake set_Page_12.jpg
lily lake set_Page_13.jpg
lily lake set_Page_14.jpg
lily lake set_Page_15.jpg
lily lake set_Page_16.jpg
lily lake set_Page_17.jpg
lily lake set_Page_18.jpg
lily lake set_Page_19.jpg
lily lake set_Page_20.jpg
lily lake set_Page_22.jpg
lily lake set_Page_23.jpg
lily lake set_Page_24.jpg
lily lake set_Page_25.jpg
lily lake set_Page_26.jpg
lily lake set_Page_27.jpg
lily lake set_Page_28.jpg
lily lake set_Page_29.jpg
lily lake set_Page_30.jpg
lily lake set_Page_31.jpg
lily lake set_Page_32.jpg
lily lake set_Page_33.jpg
lily lake set_Page_34.jpg
lily lake set_Page_35.jpg
lily lake set_Page_36.jpg
lily lake set_Page_37.jpg
lily lake set_Page_38.jpg
lily lake set_Page_39.jpg
lily lake set_Page_40.jpg
lily lake set_Page_41.jpg
lily lake set_Page_42.jpg
lily lake set_Page_43.jpg
lily lake set_Page_44.jpg
lily lake set_Page_45.jpg
lily lake set_Page_46.jpg
lily lake set_Page_47.jpg
lily lake set_Page_48.jpg
lily lake set_Page_49.jpg
lily lake set_Page_50.jpg
lily lake set_Page_51.jpg
lily lake set_Page_52.jpg
lily lake set_Page_53.jpg
lily lake set_Page_54.jpg
lily lake set_Page_55.jpg
lily lake set_Page_56.jpg
lily lake set_Page_57.jpg
lily lake set_Page_58.jpg
lily lake set_Page_59.jpg
lily lake set_Page_60.jpg
lily lake set_Page_61.jpg
lily lake set_Page_62.jpg
lily lake set_Page_63.jpg
lily lake set_Page_64.jpg
lily lake set_Page_65.jpg
lily lake set_Page_66.jpg
lily lake set_Page_67.jpg
lily lake set_Page_68.jpg
lily lake set_Page_69.jpg
lily lake set_Page_70.jpg
lily lake set_Page_71.jpg
lily lake set_Page_72.jpg
lily lake set_Page_73.jpg
lily lake set_Page_74.jpg
lily lake set_Page_75.jpg
lily lake set_Page_76.jpg
lily lake set_Page_77.jpg
lily lake set_Page_78.jpg
lily lake set_Page_79.jpg
lily lake set_Page_80.jpg
lily lake set_Page_81.jpg
lily lake set_Page_82.jpg
lily lake set_Page_83.jpg

Powered by Squarespace.