• Forager California
  • Nike
  • Adobe
  • OHIO Design
  • Bohlin Cywinski Jackson

Nicholas V. Ruiz

  • Forager California
  • Nike
  • Adobe
  • OHIO Design
  • Bohlin Cywinski Jackson

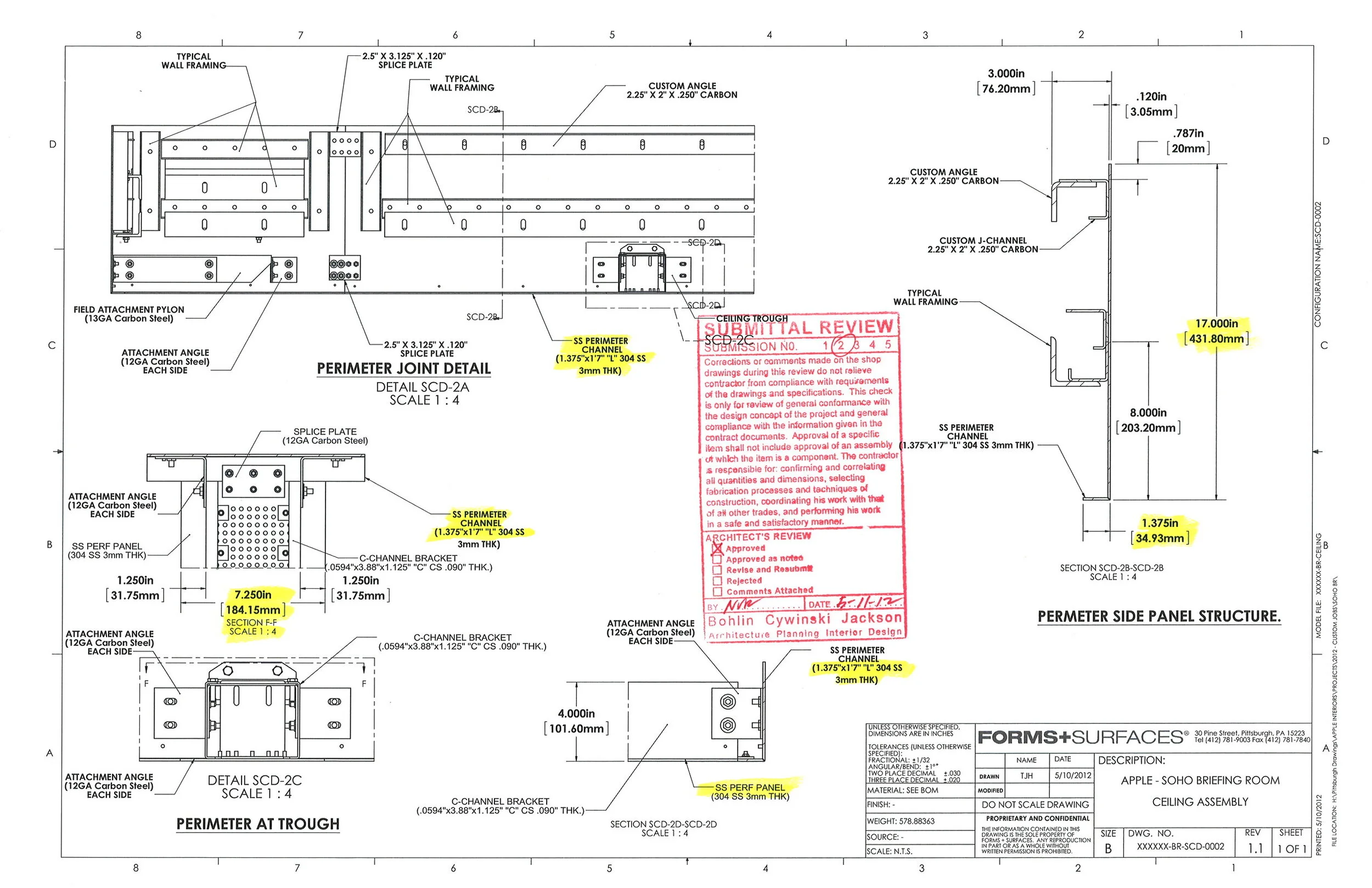
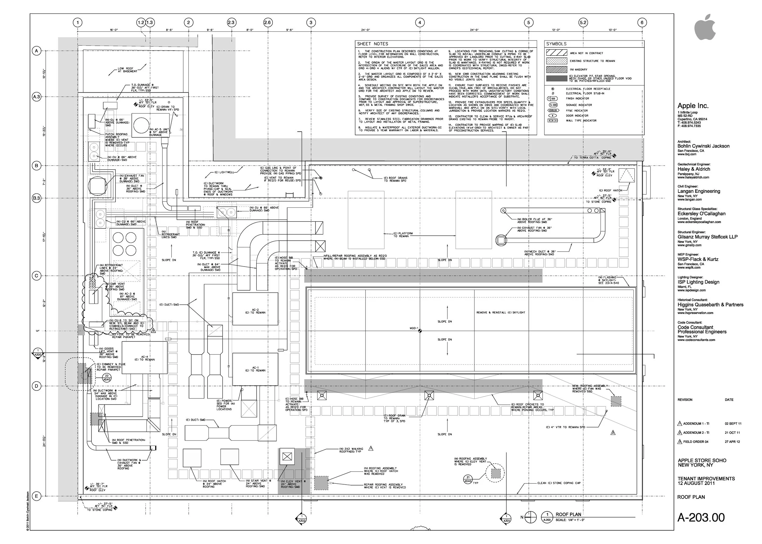
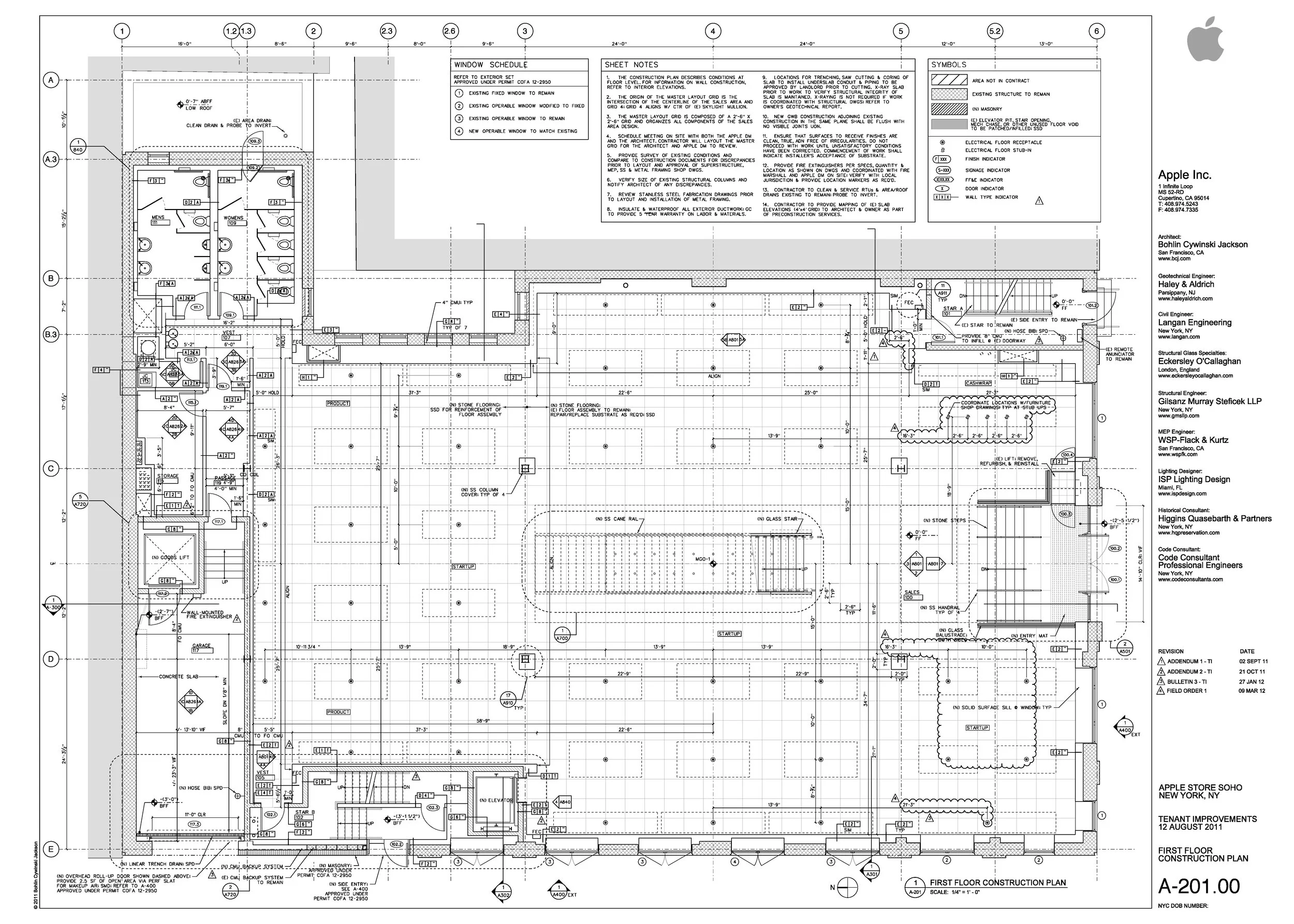
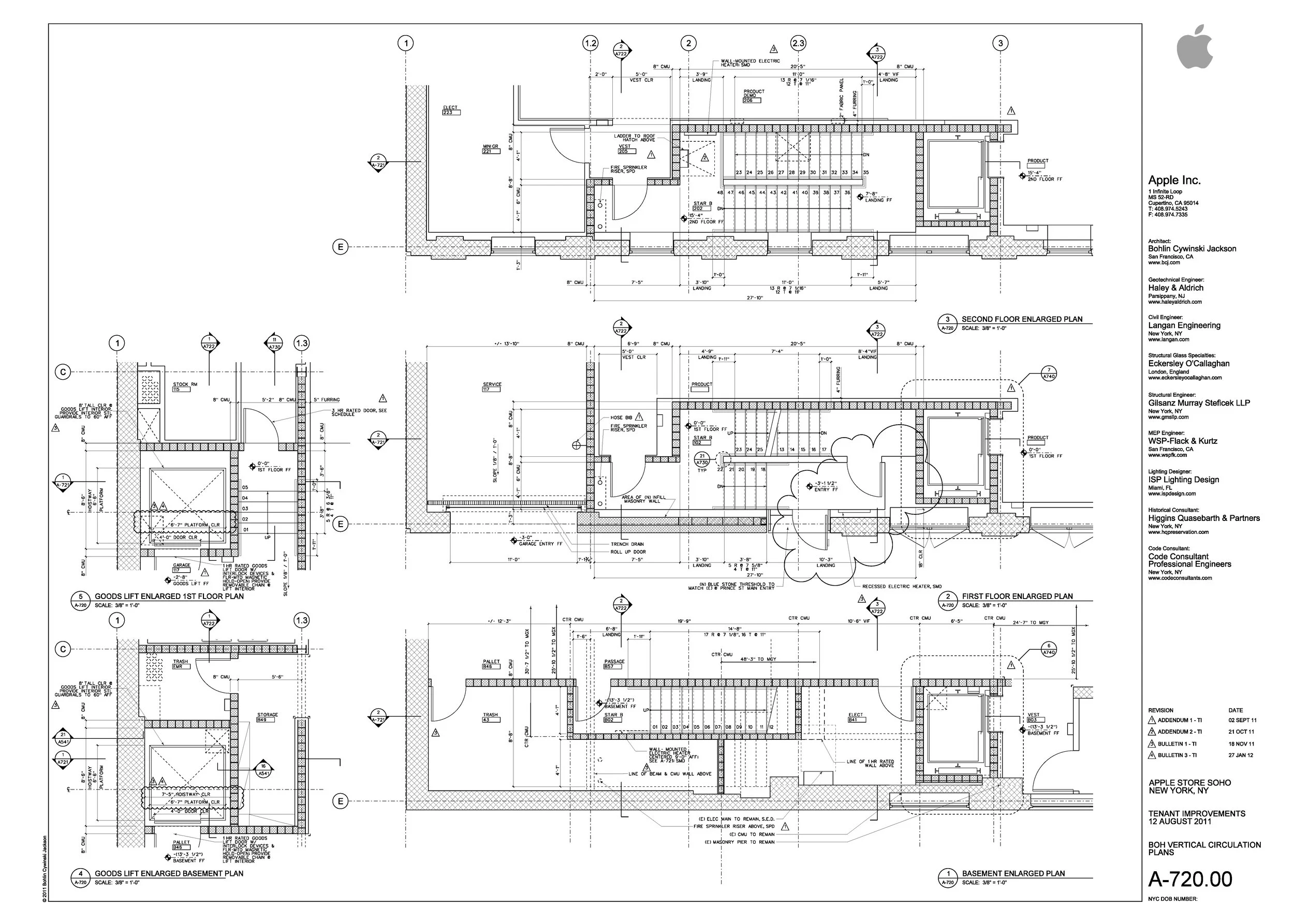
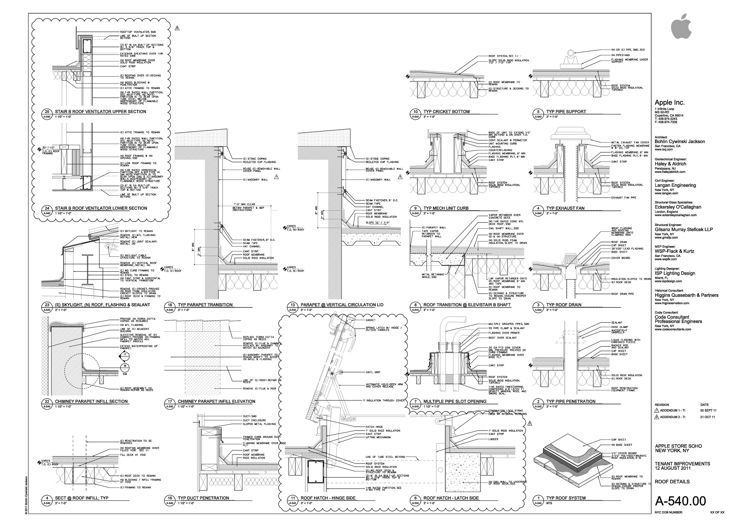
Apple Store Soho

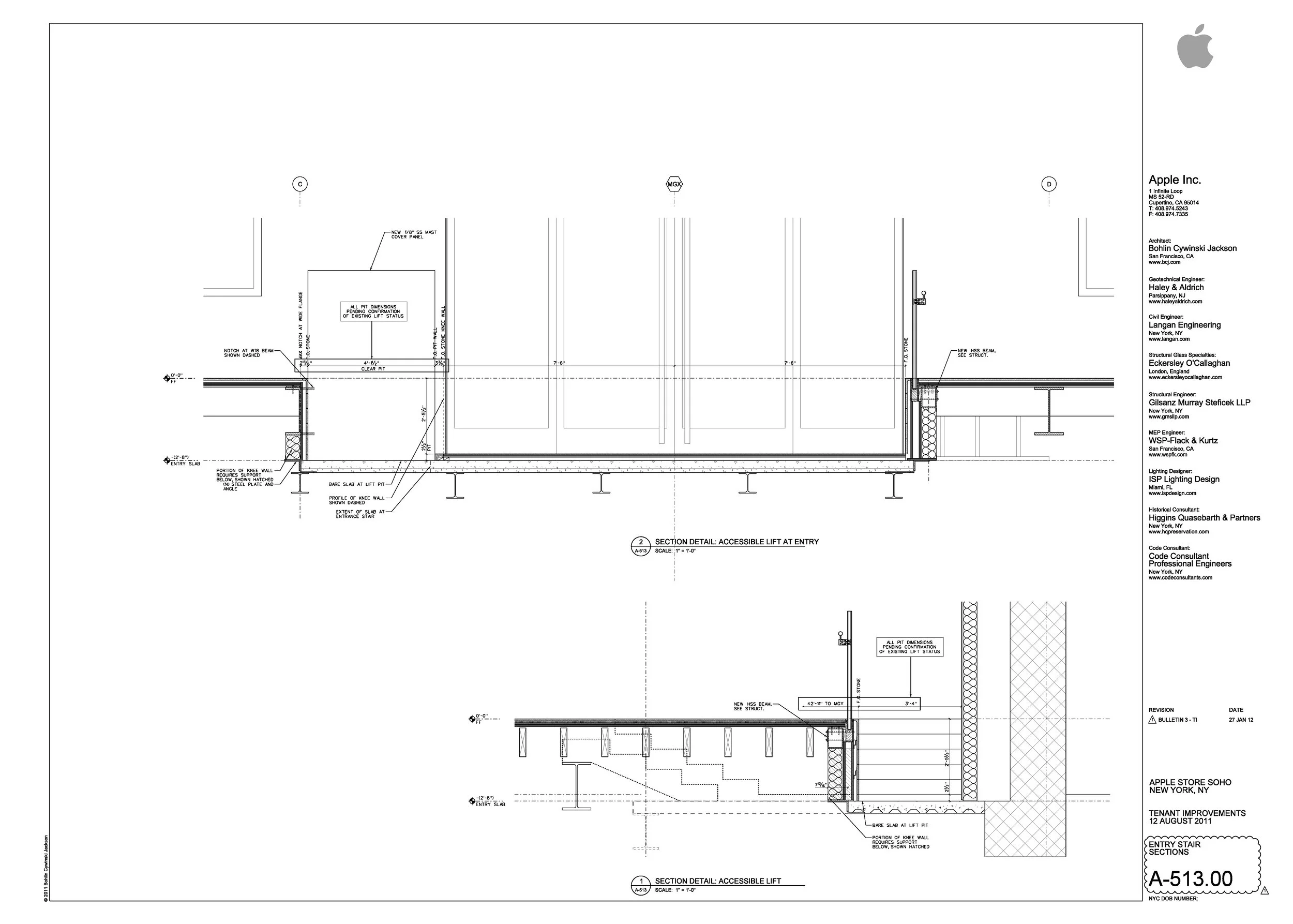
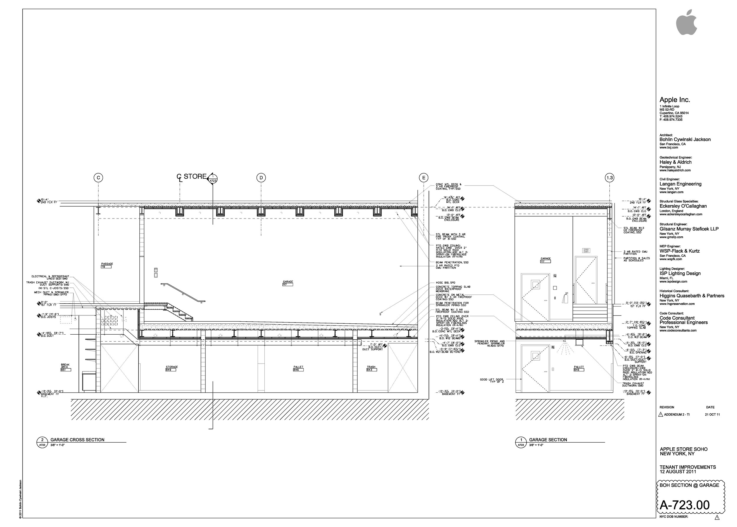
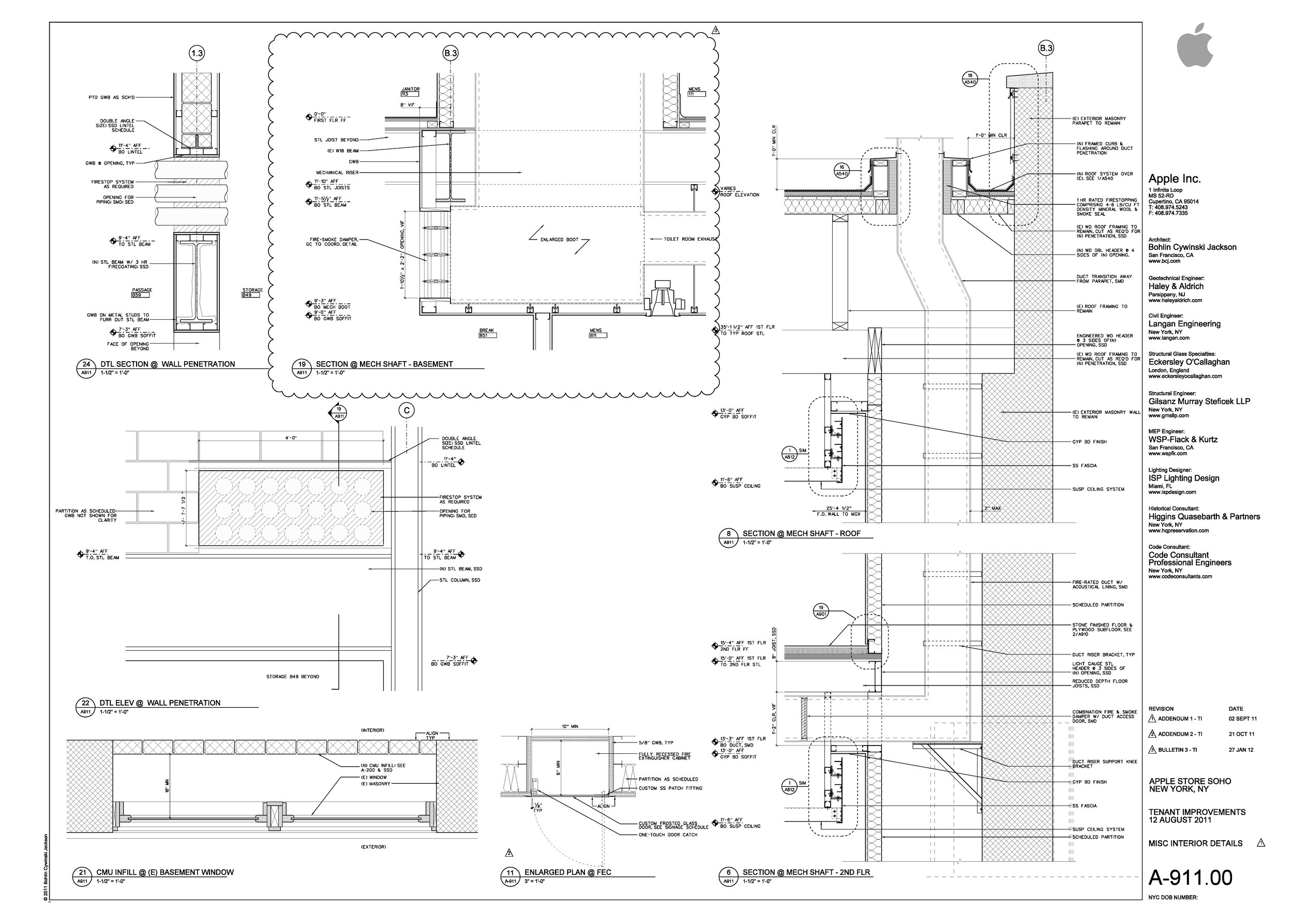
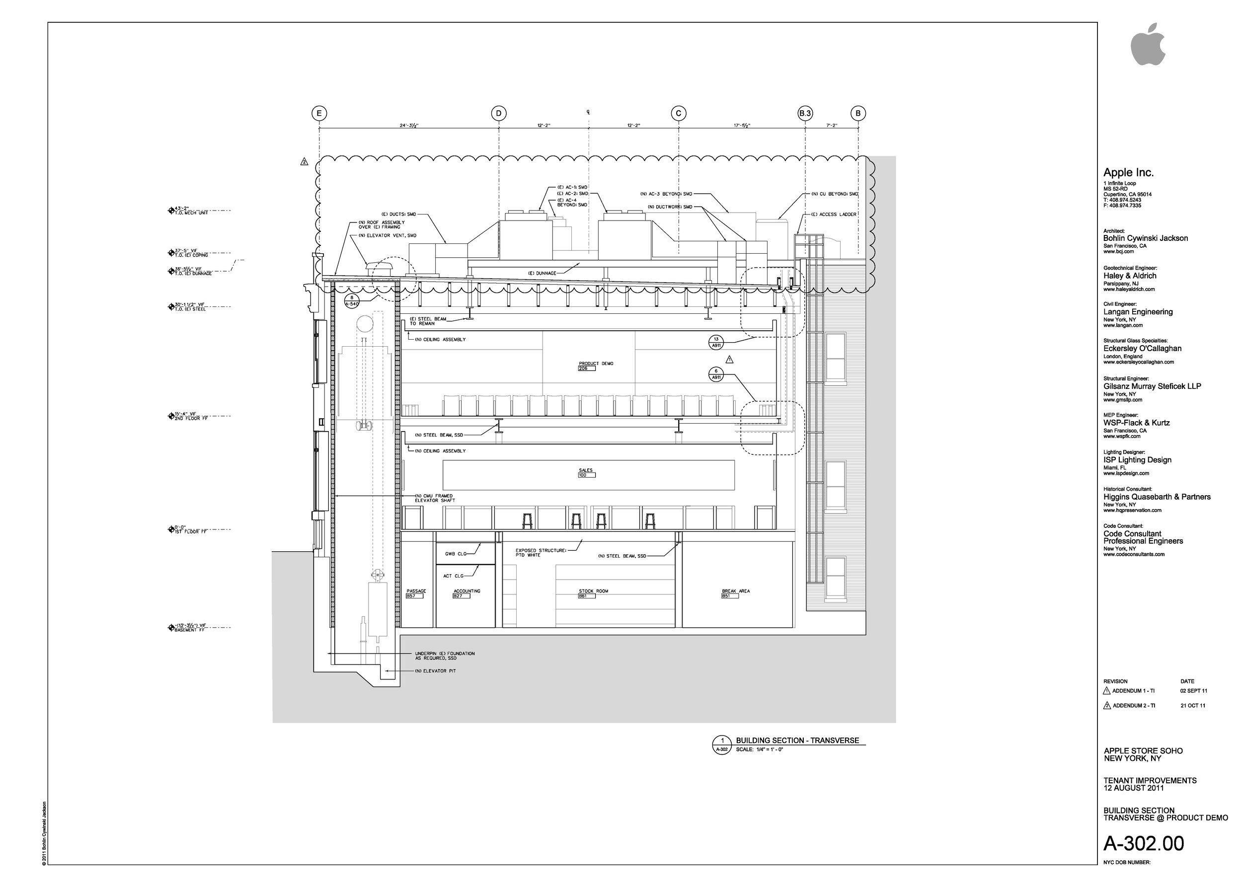
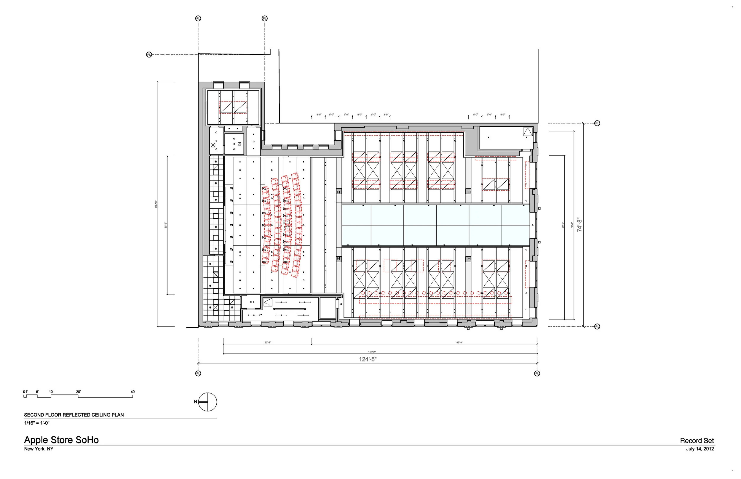
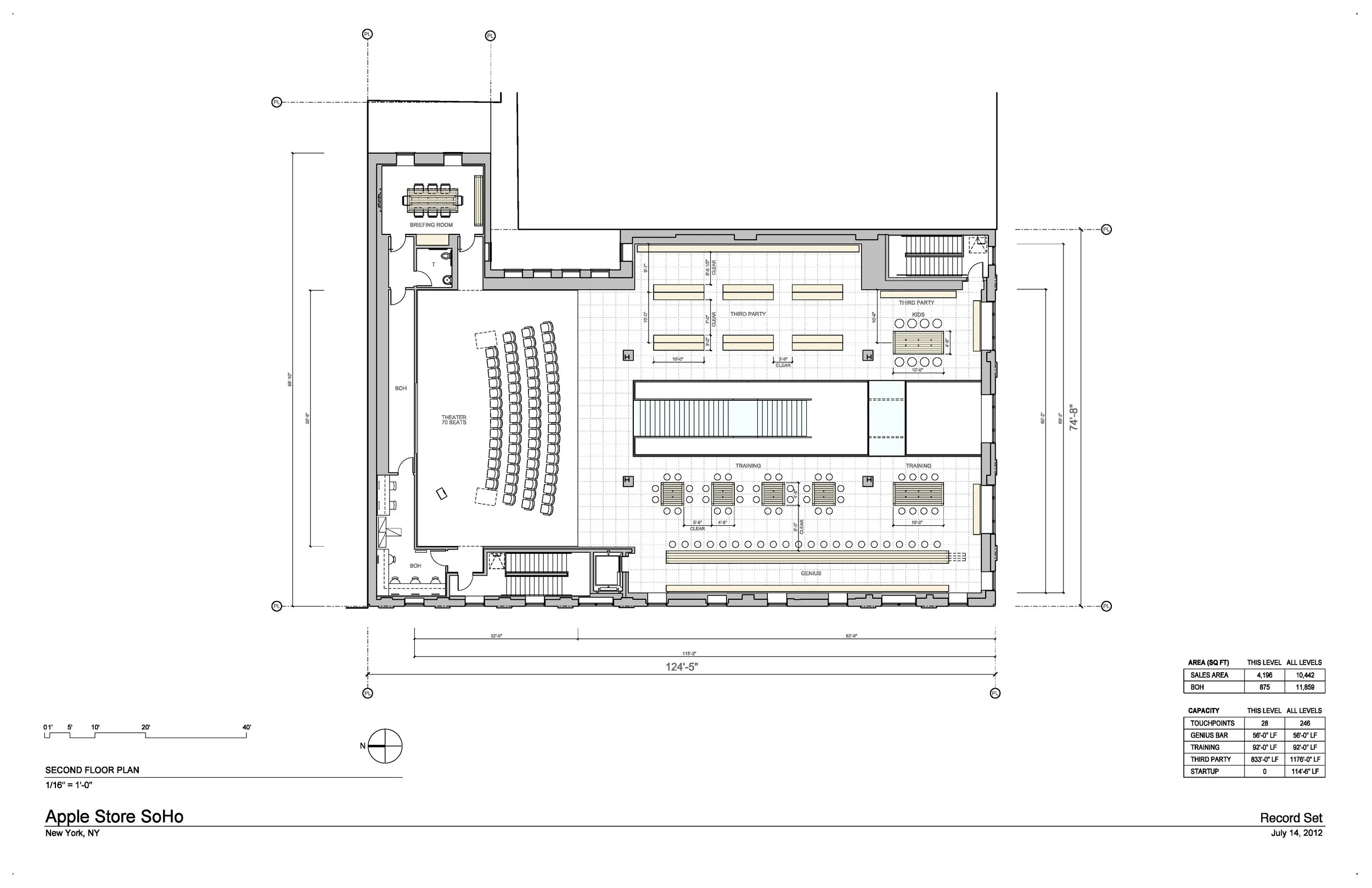
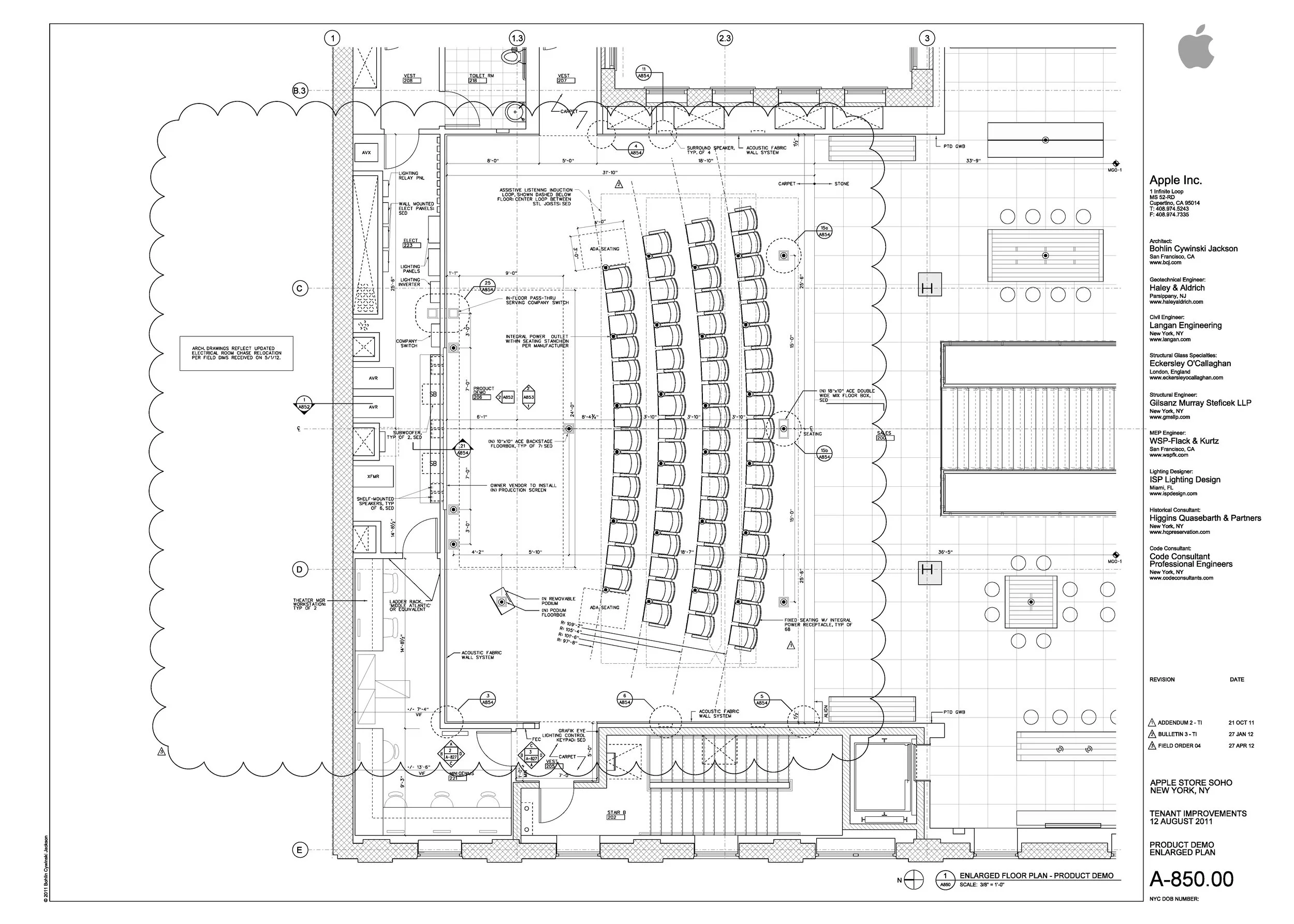
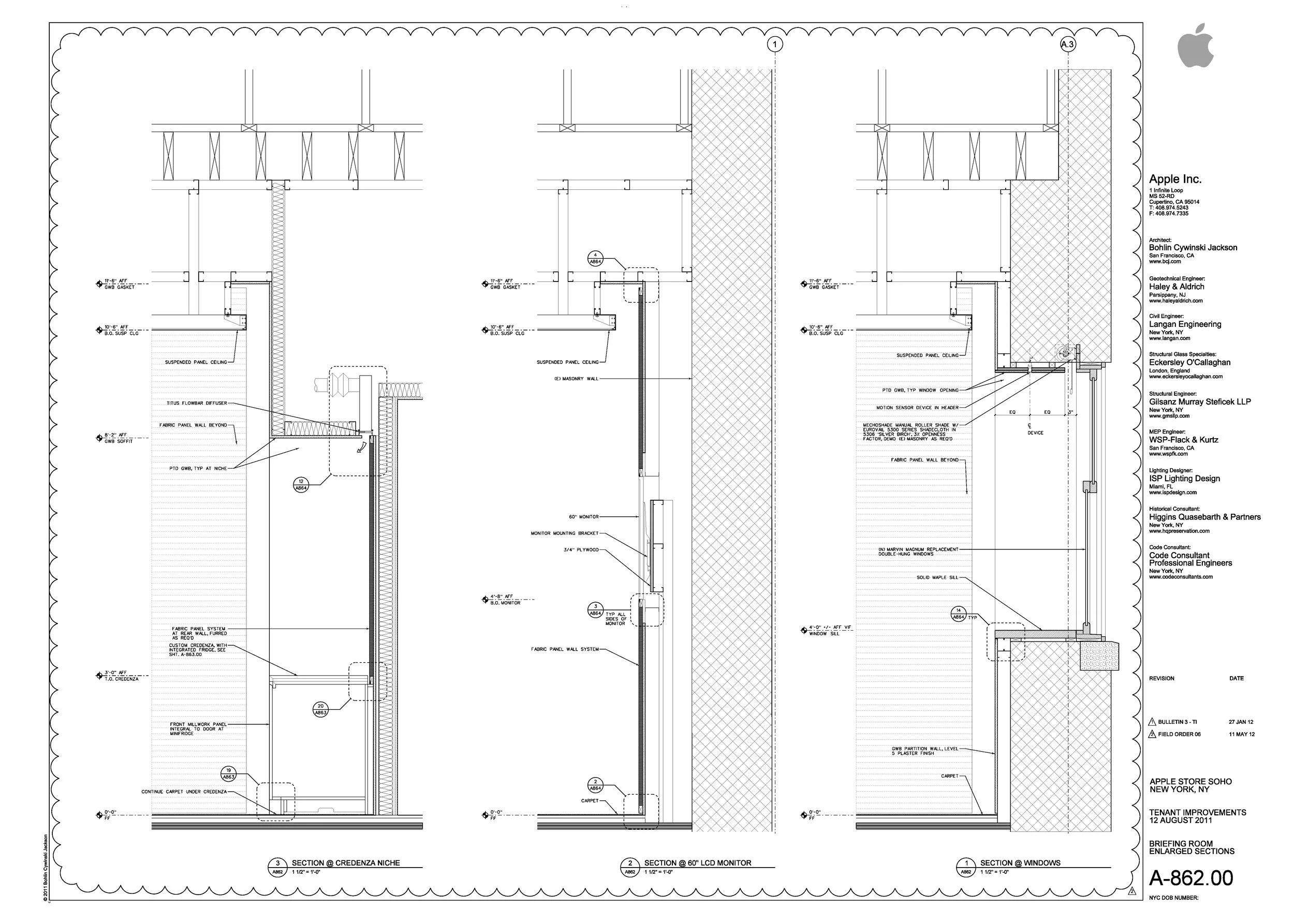
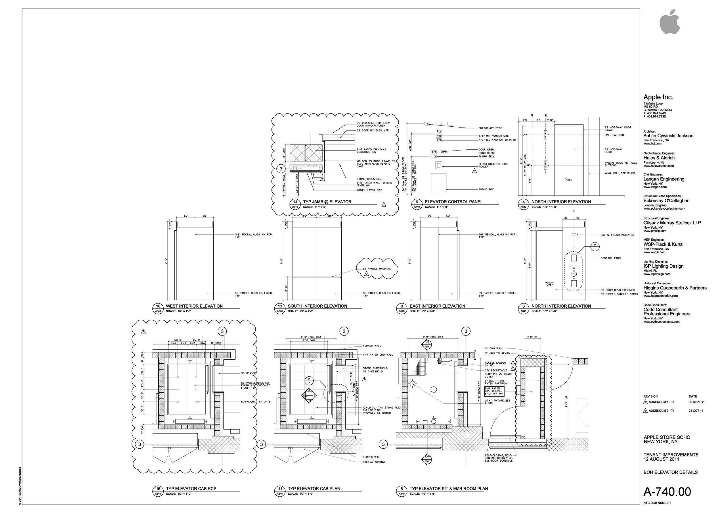
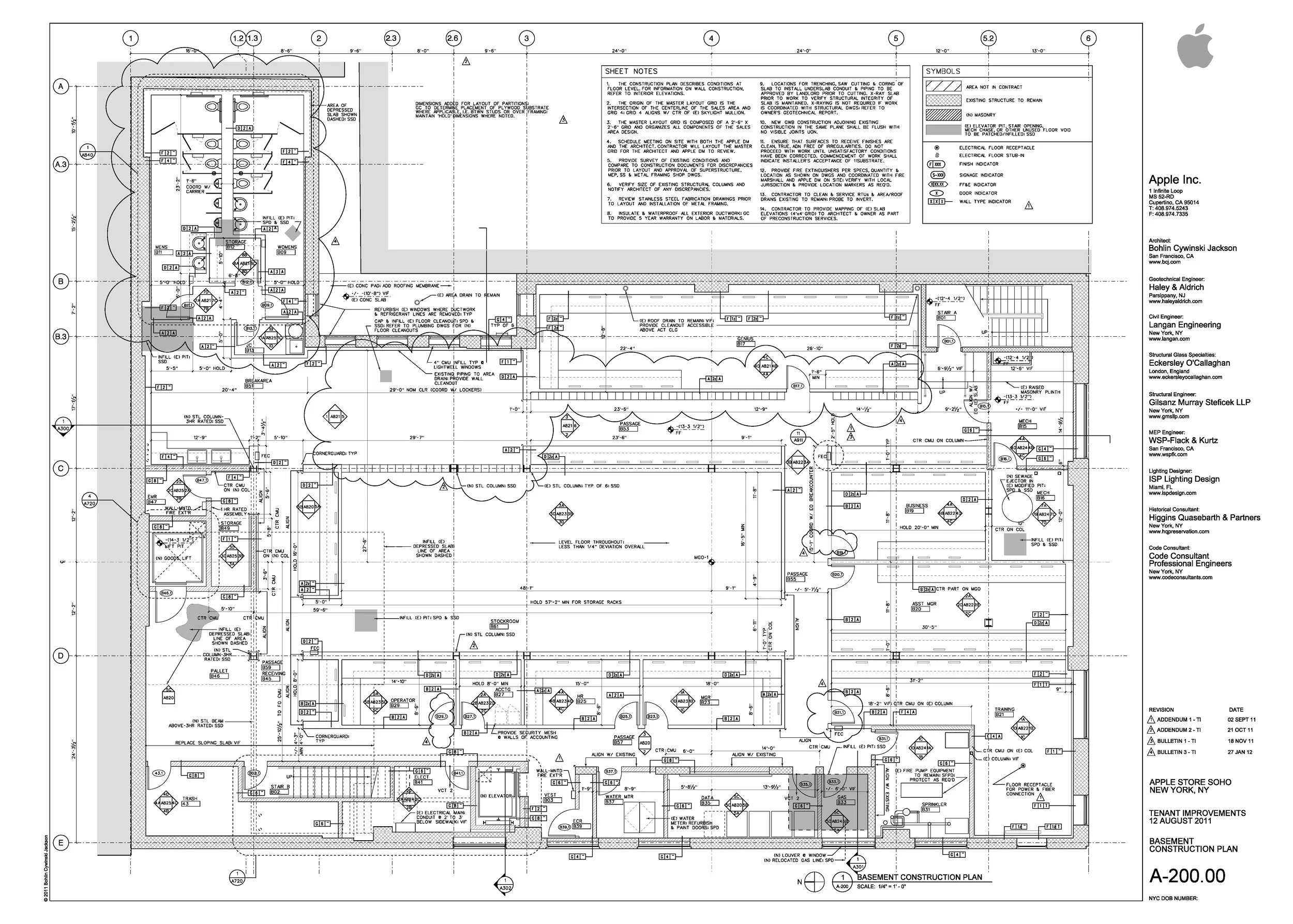
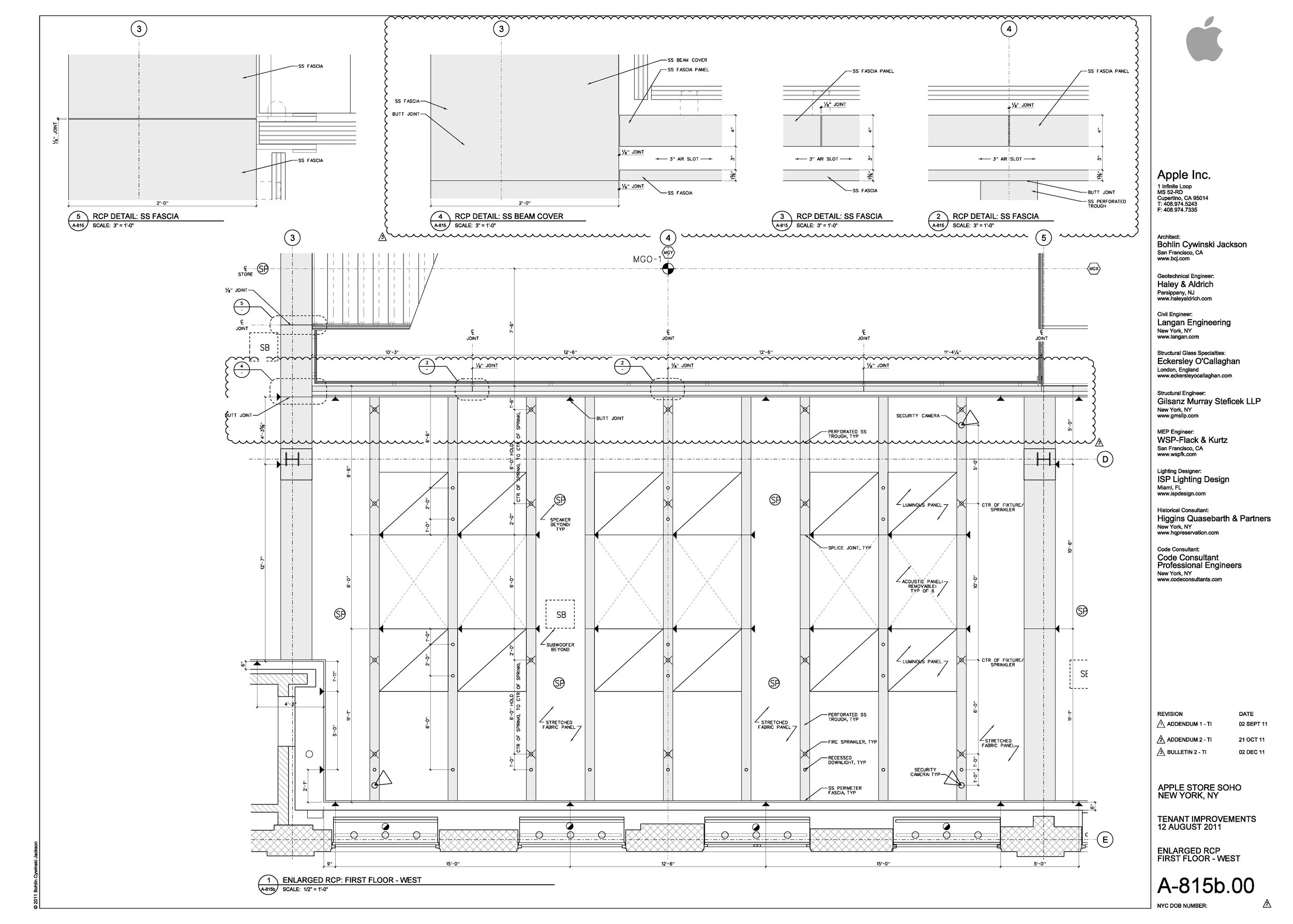
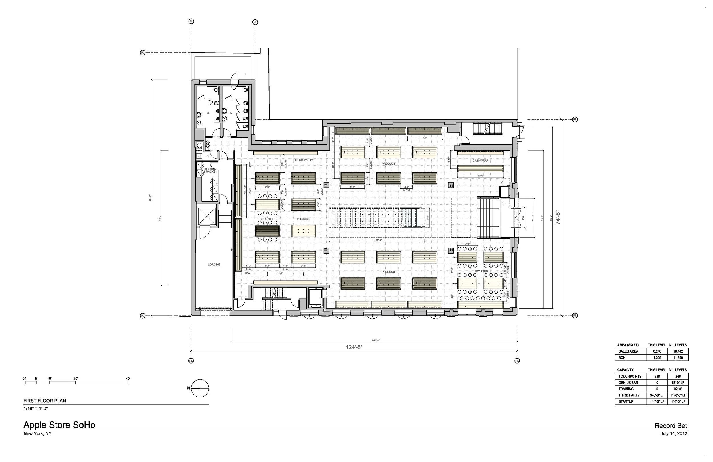
Apple Store Soho is one of Apple’s first high-profile retail locations. It was first opened in 2002 at 103 Prince Street. The original use of the building was a Post Office. The renovation of the store was the first in 10 years. The store has grown significantly, gaining sales space for twice as many products. One major feature of the new store is a state-of-the-art theater with extra seating that will be used for events and workshops. The SoHo store also has a larger Genius Bar than before, making it easier for customers to get an appointment and receive help with their Apple products.

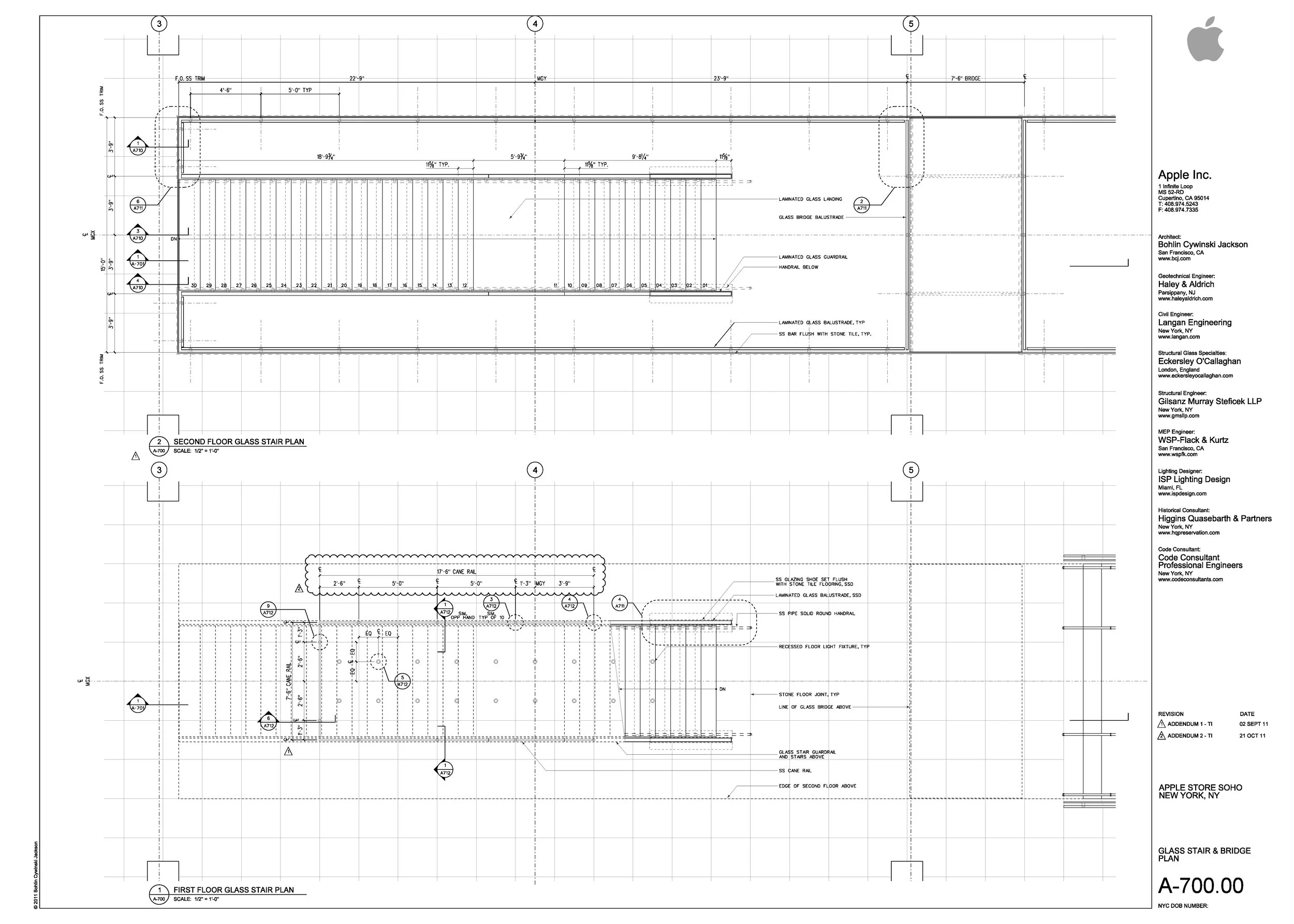
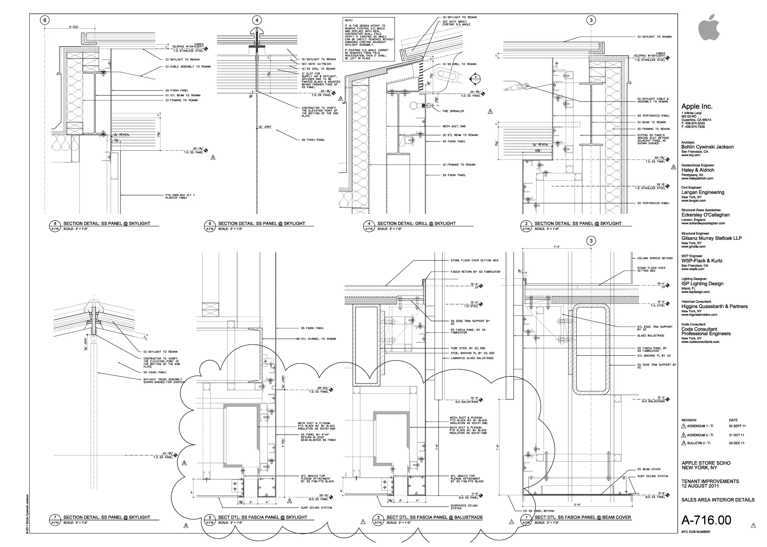
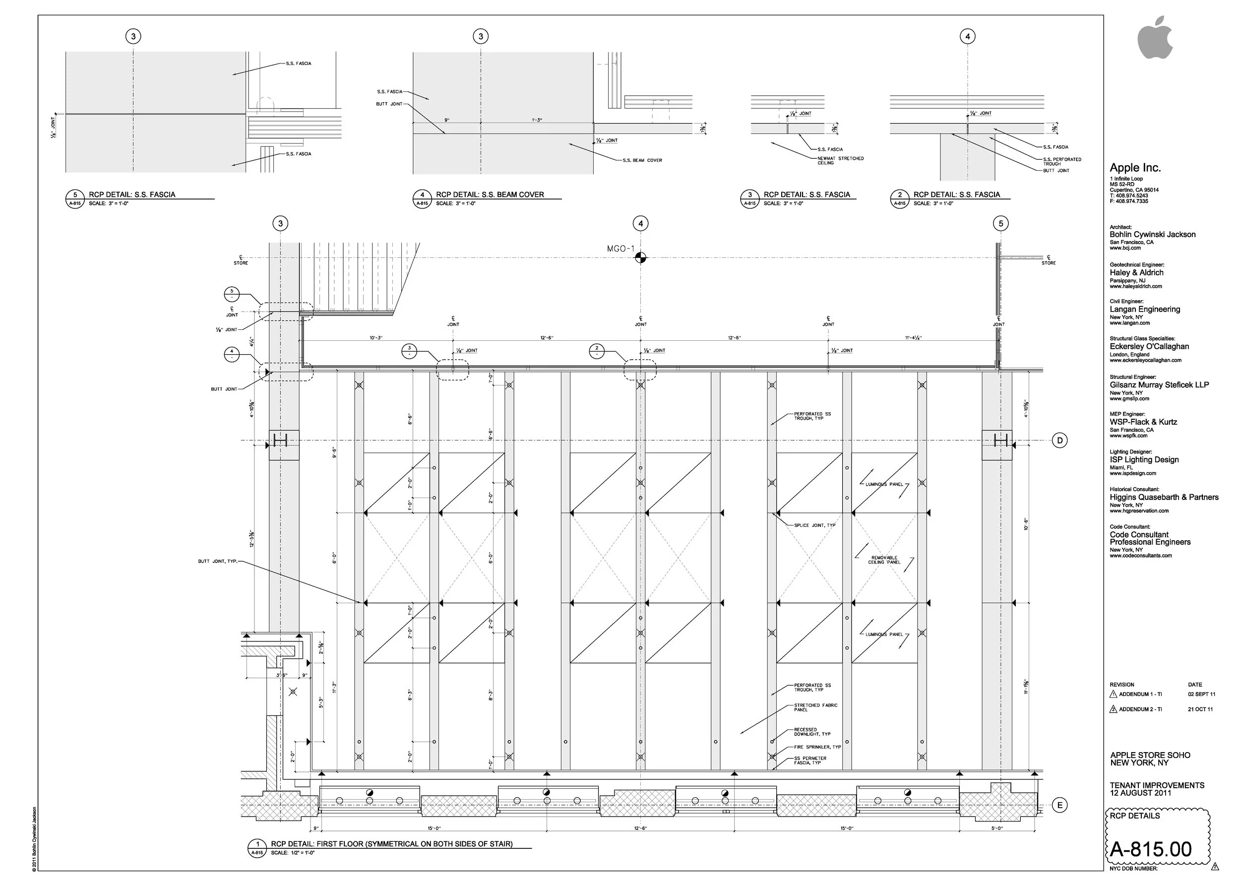
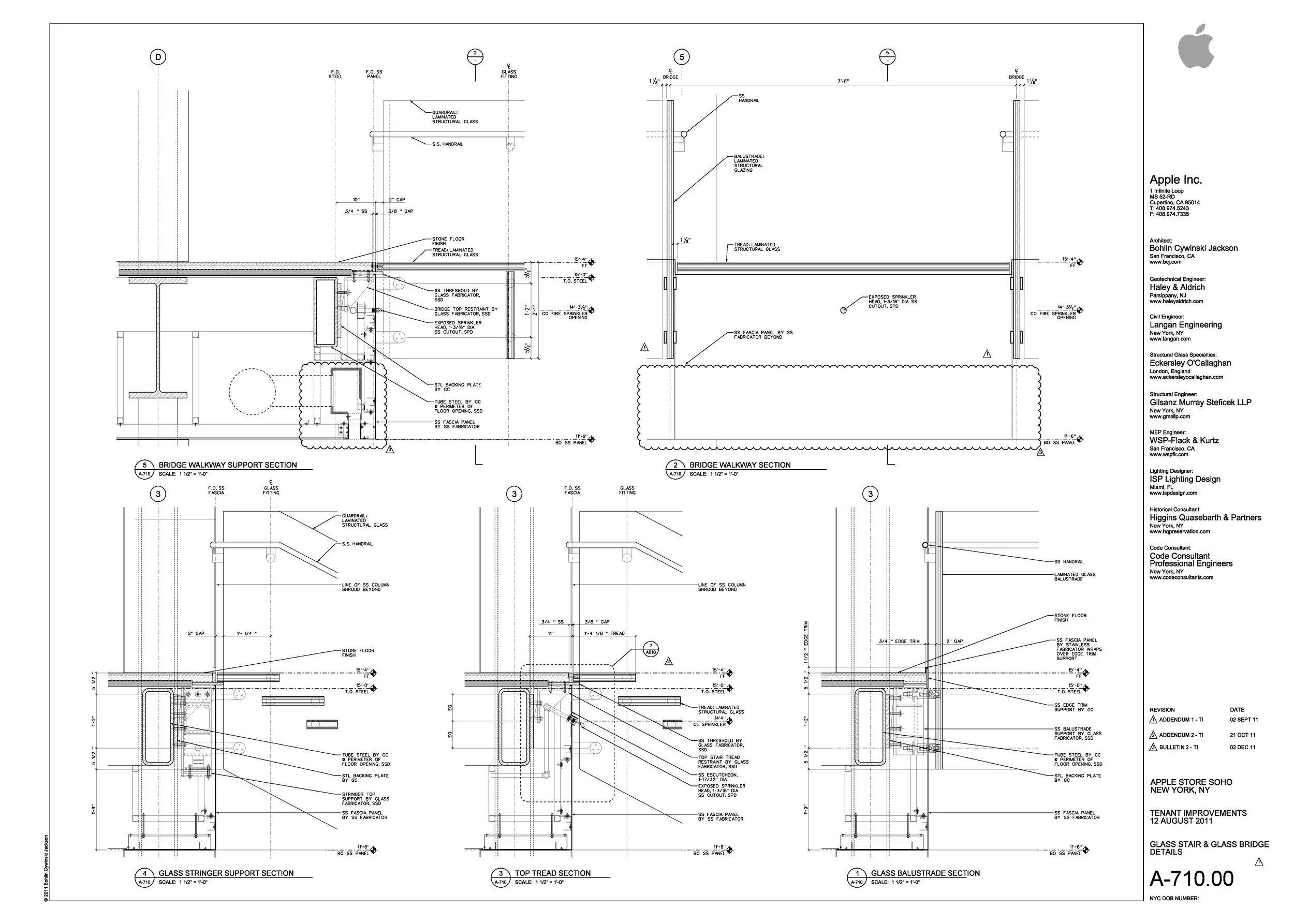
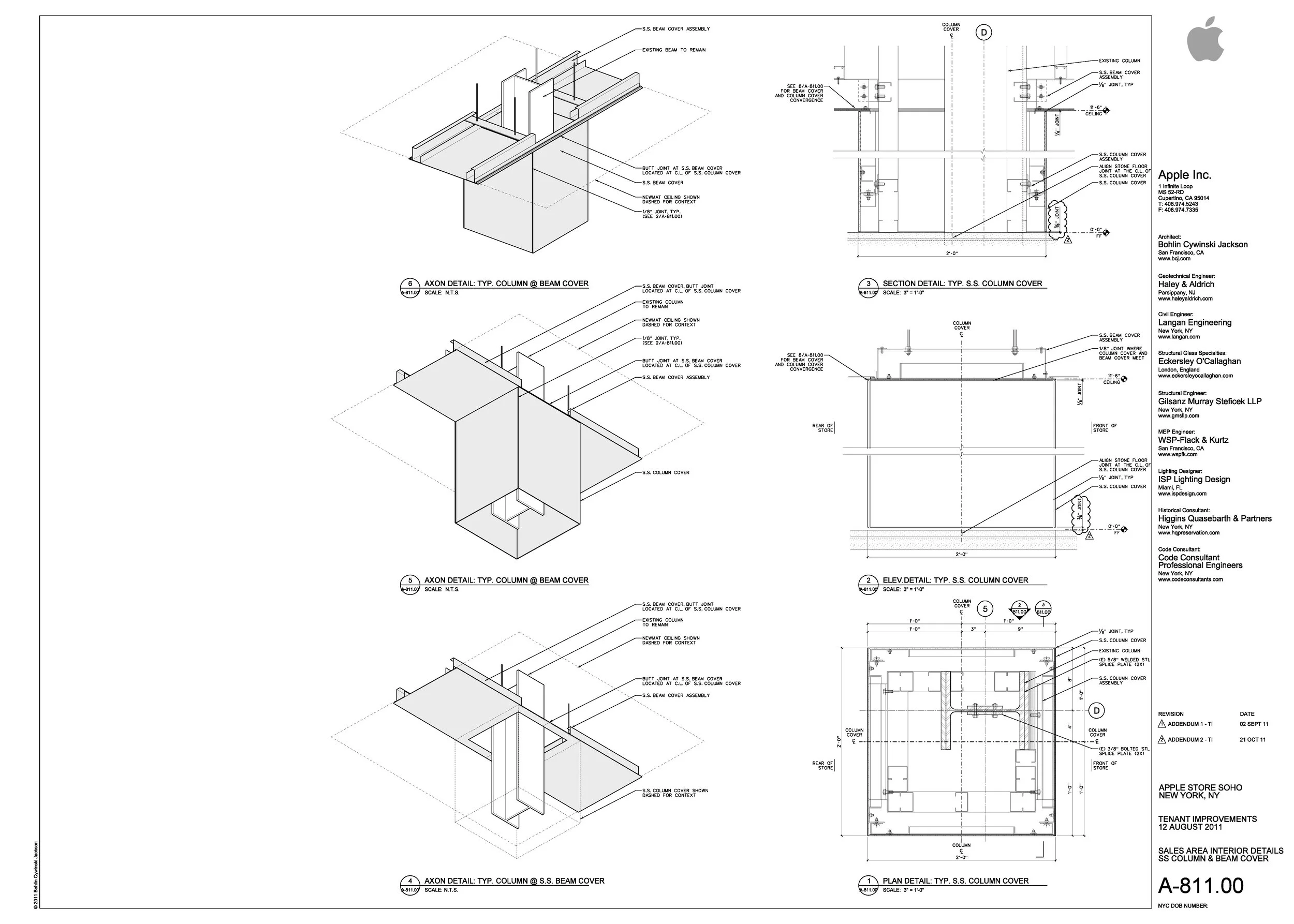
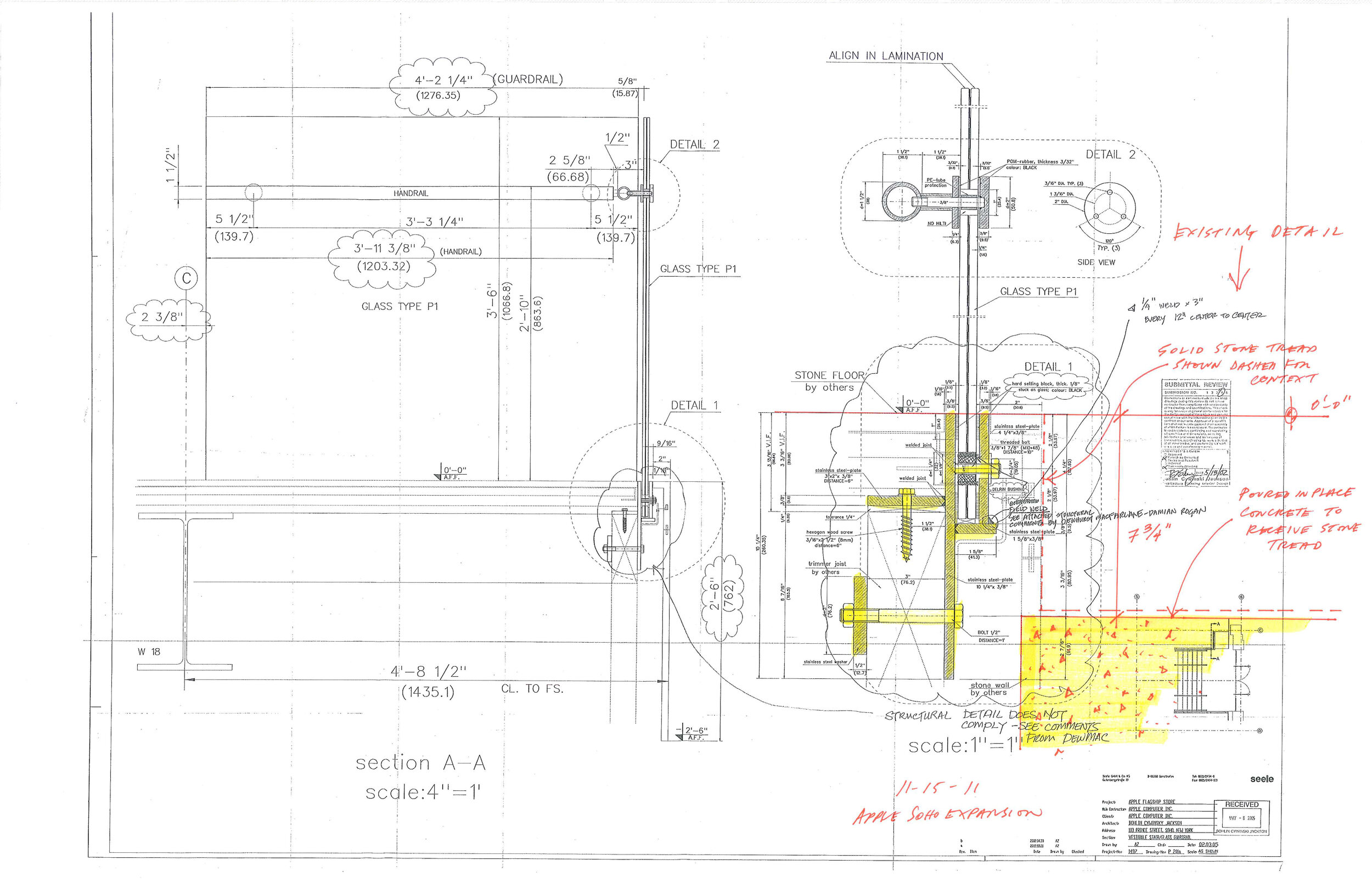
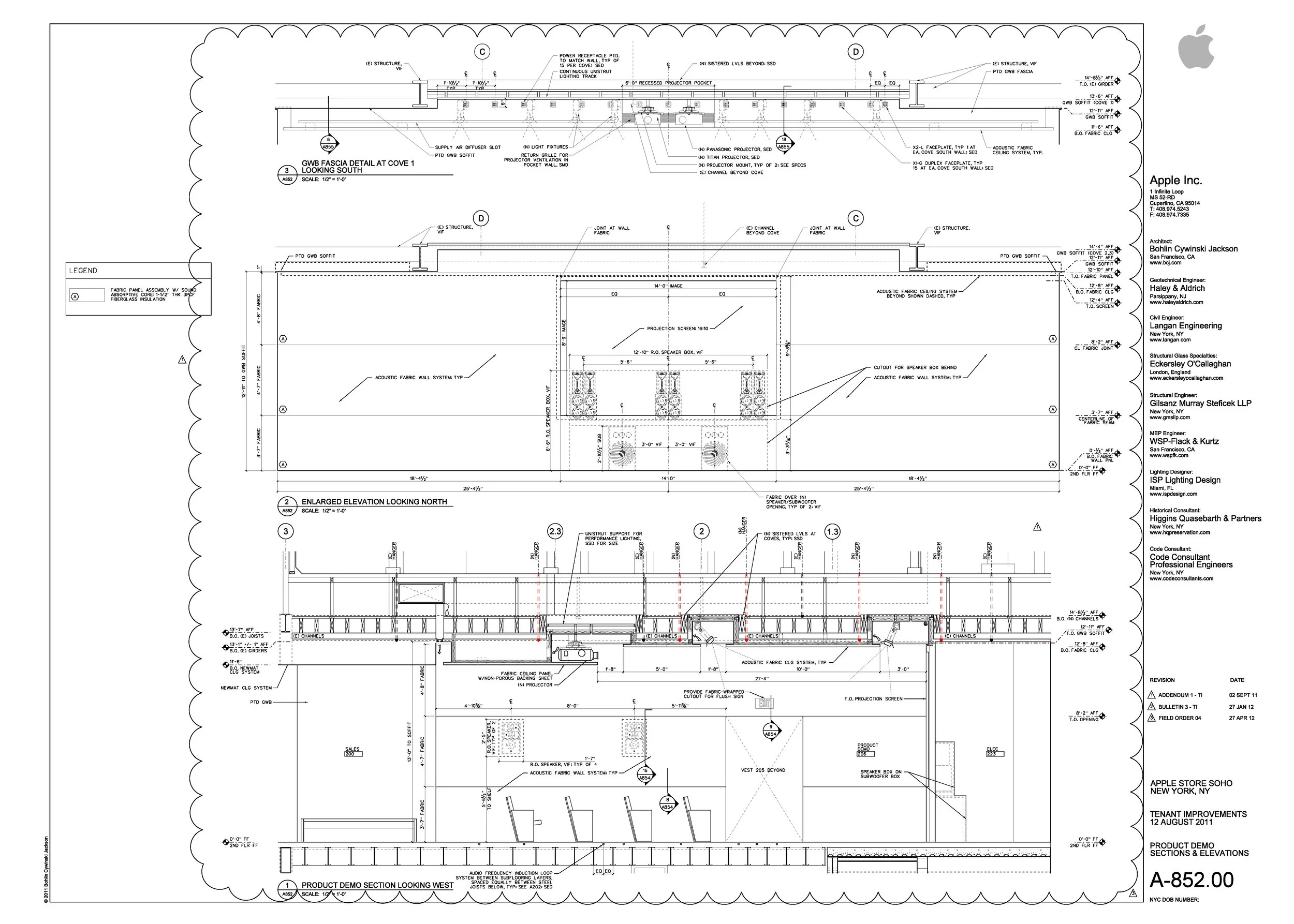
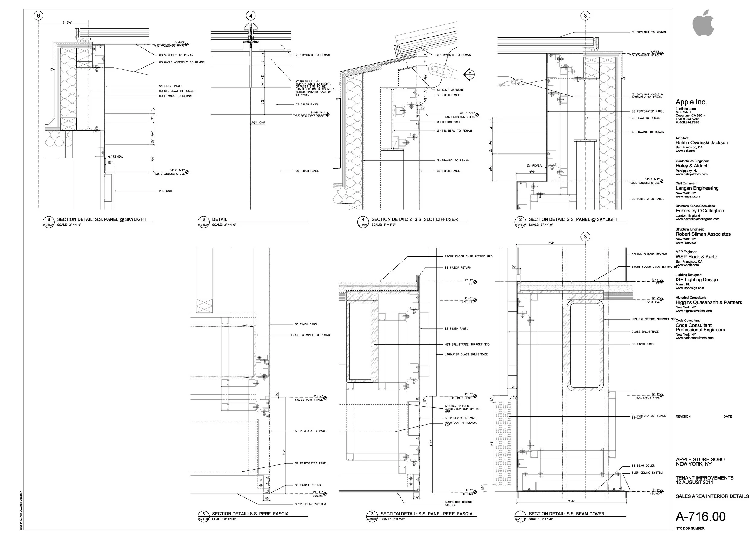
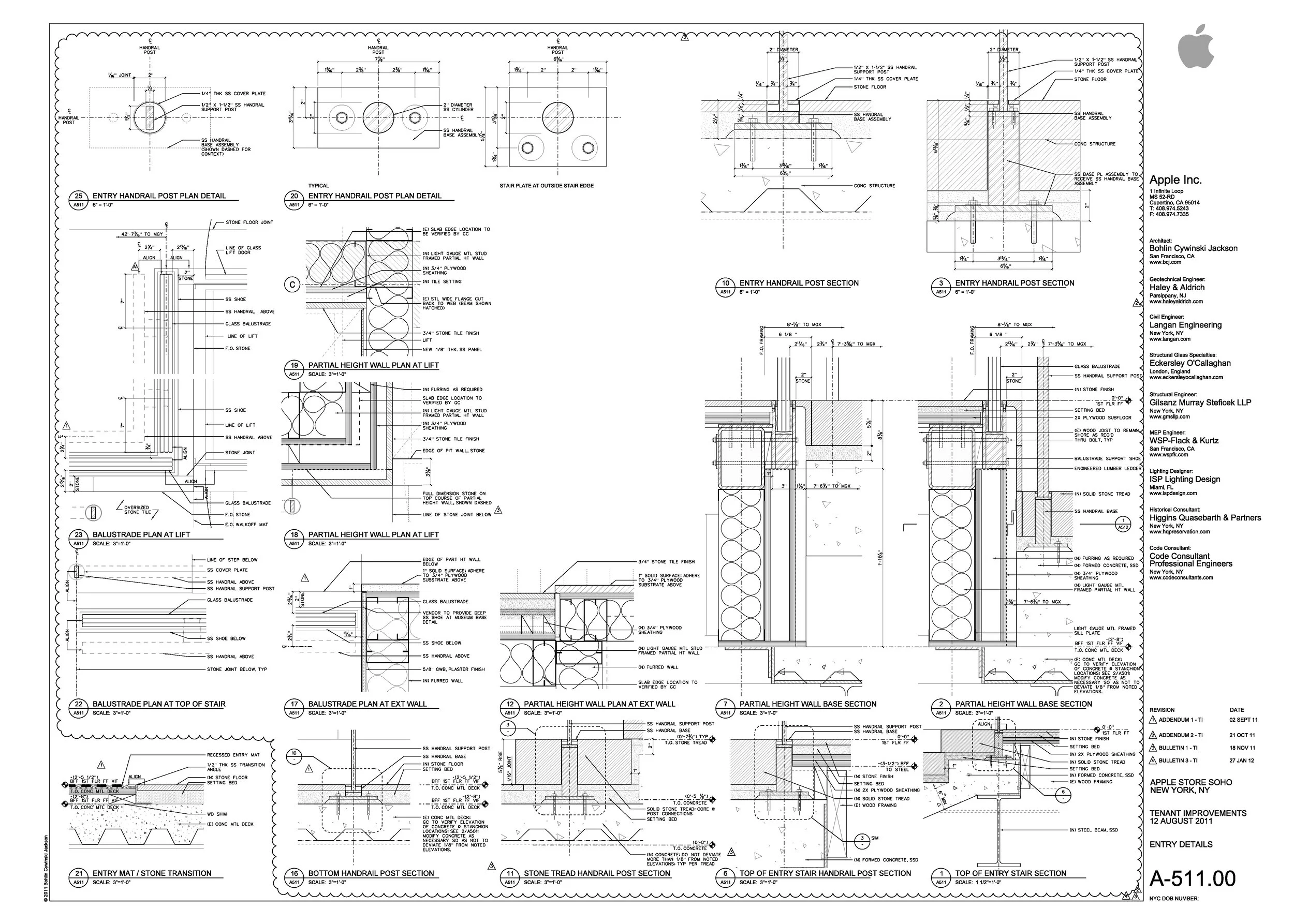
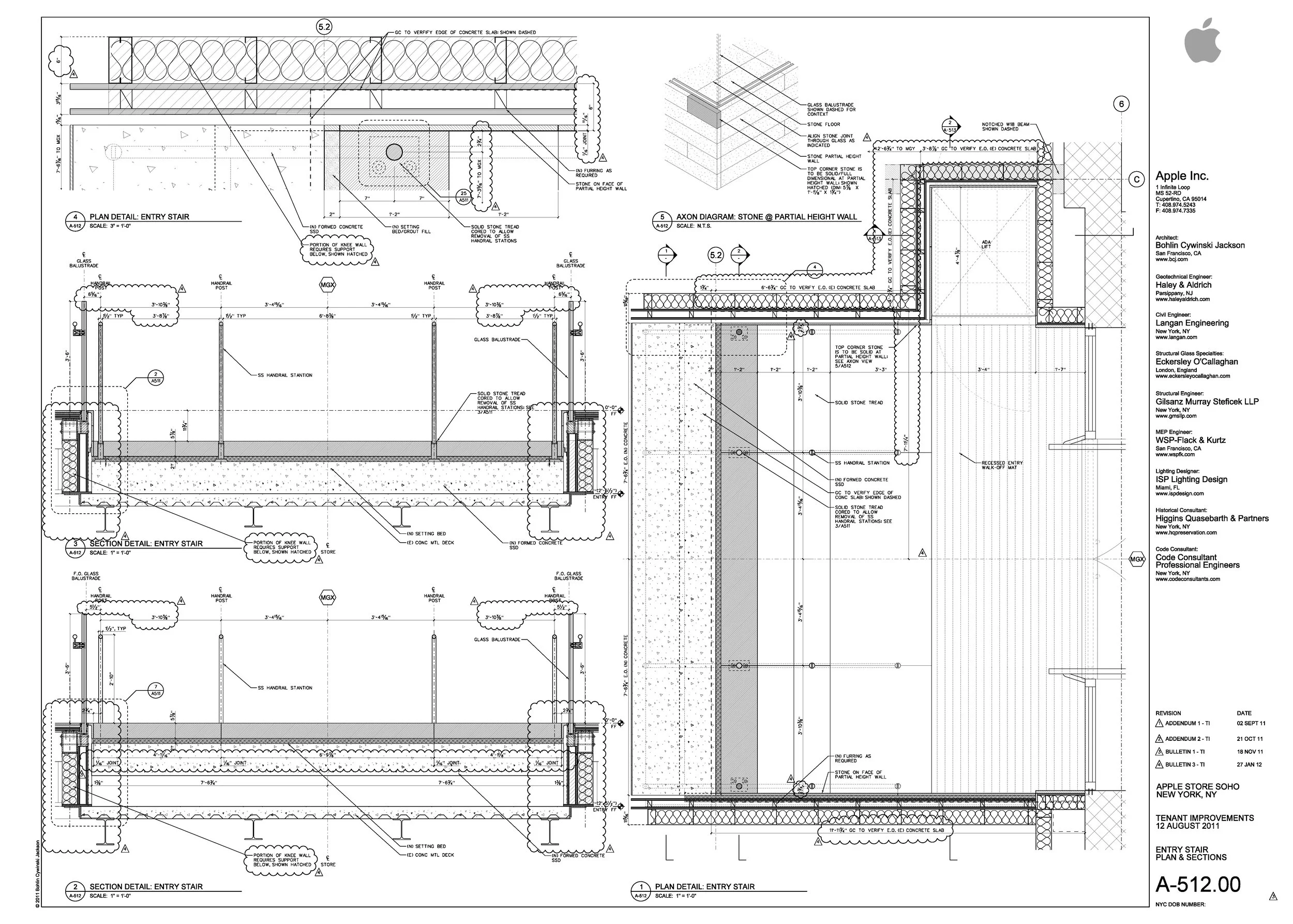
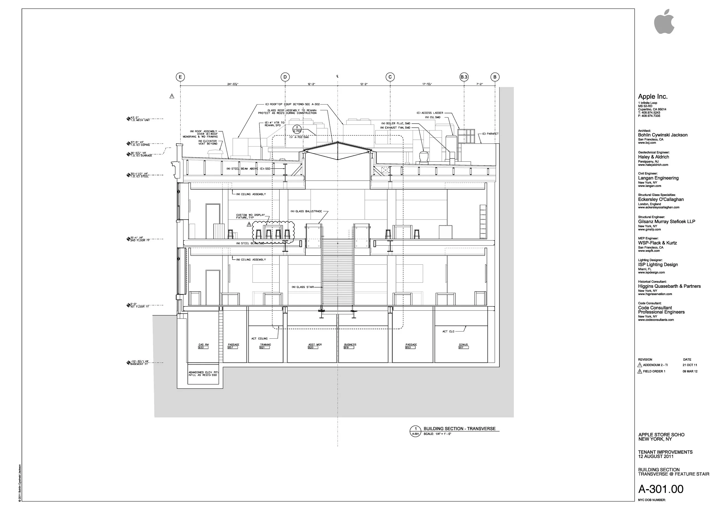
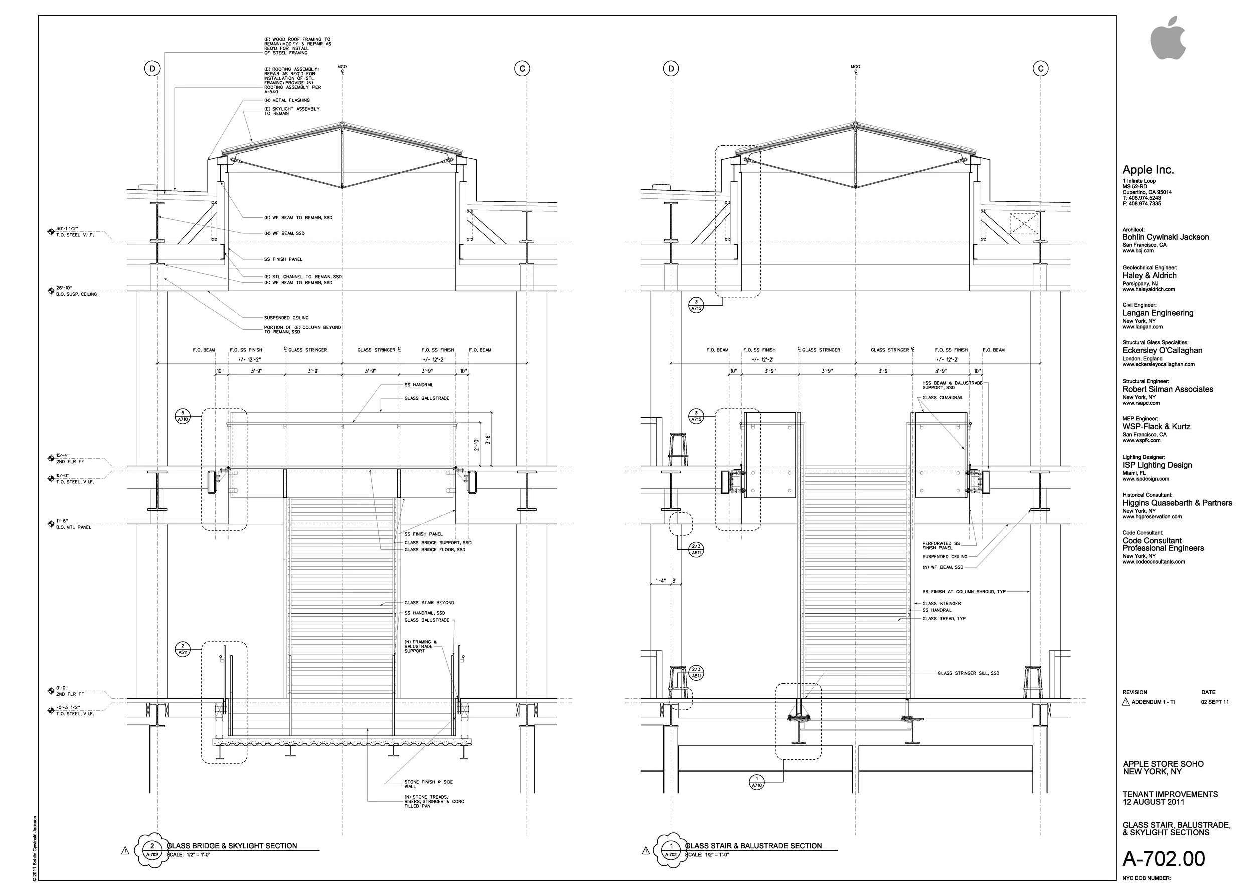
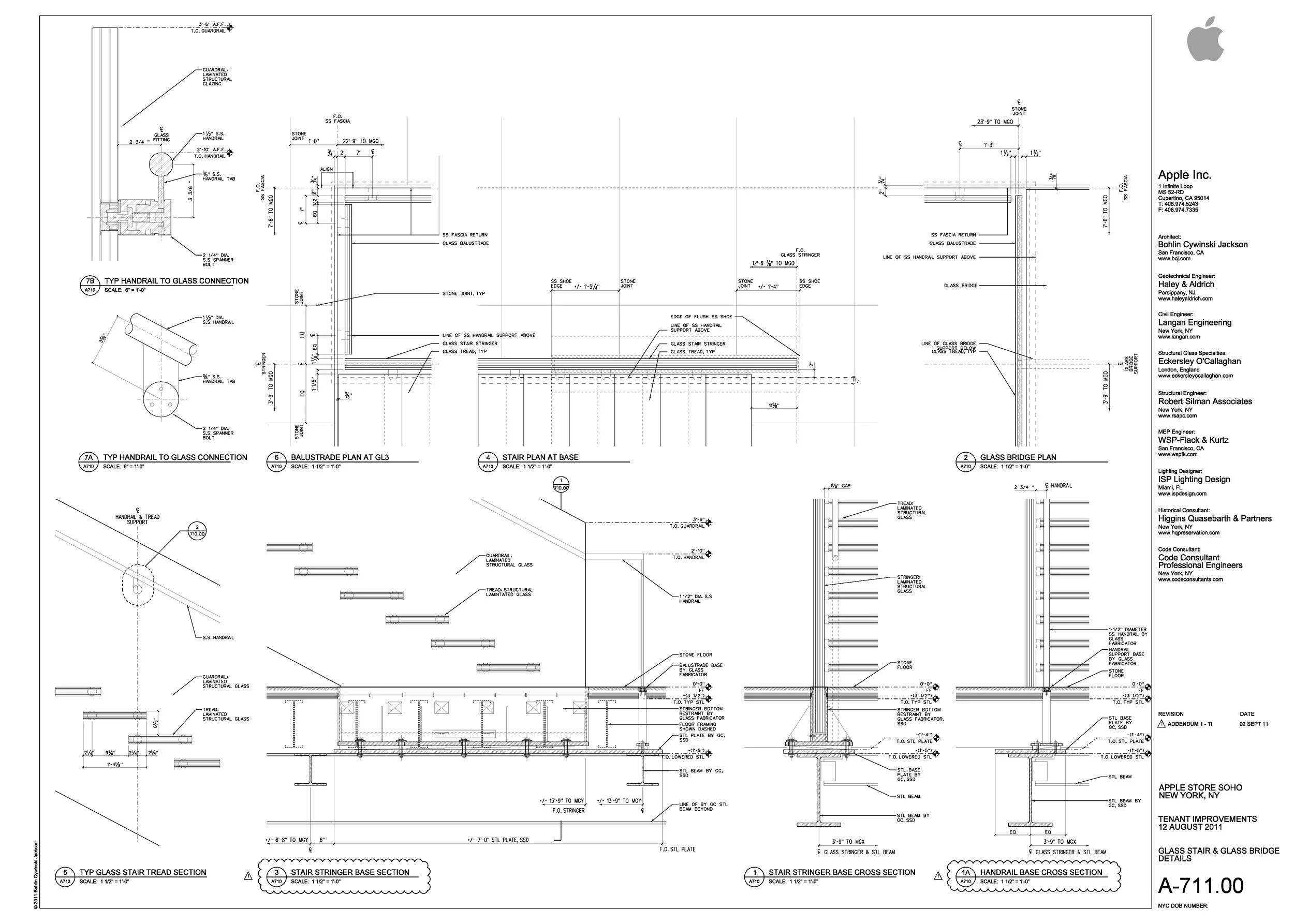
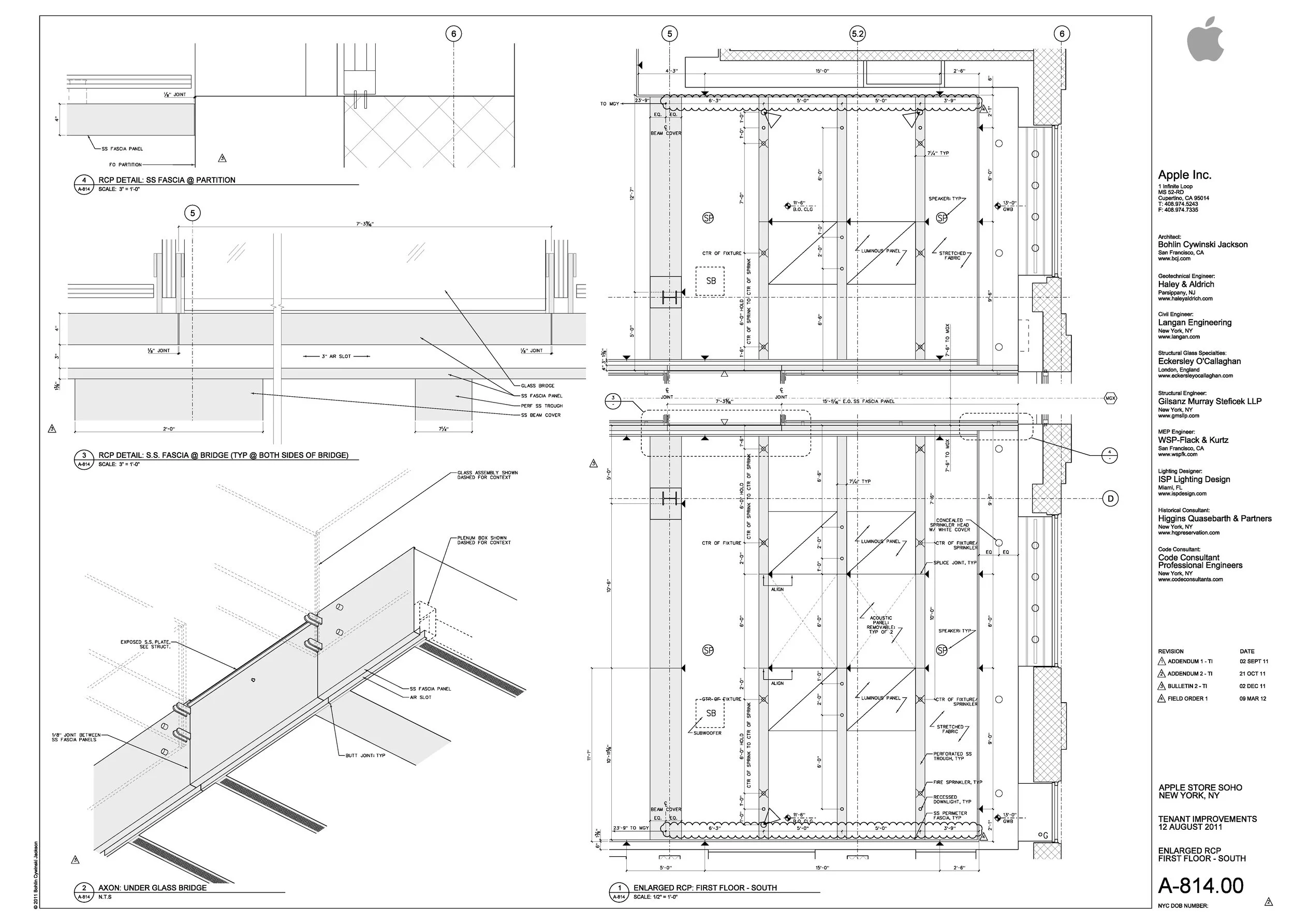
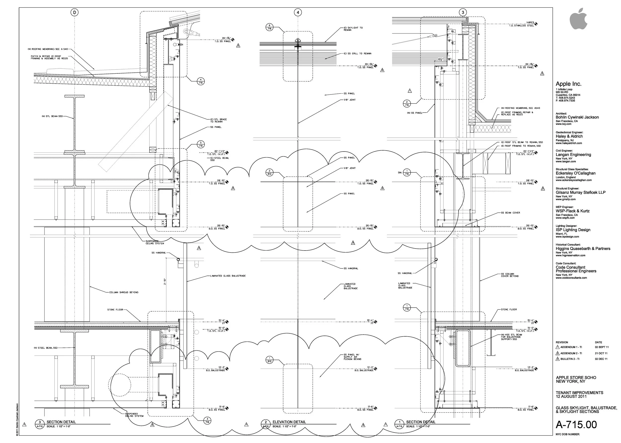
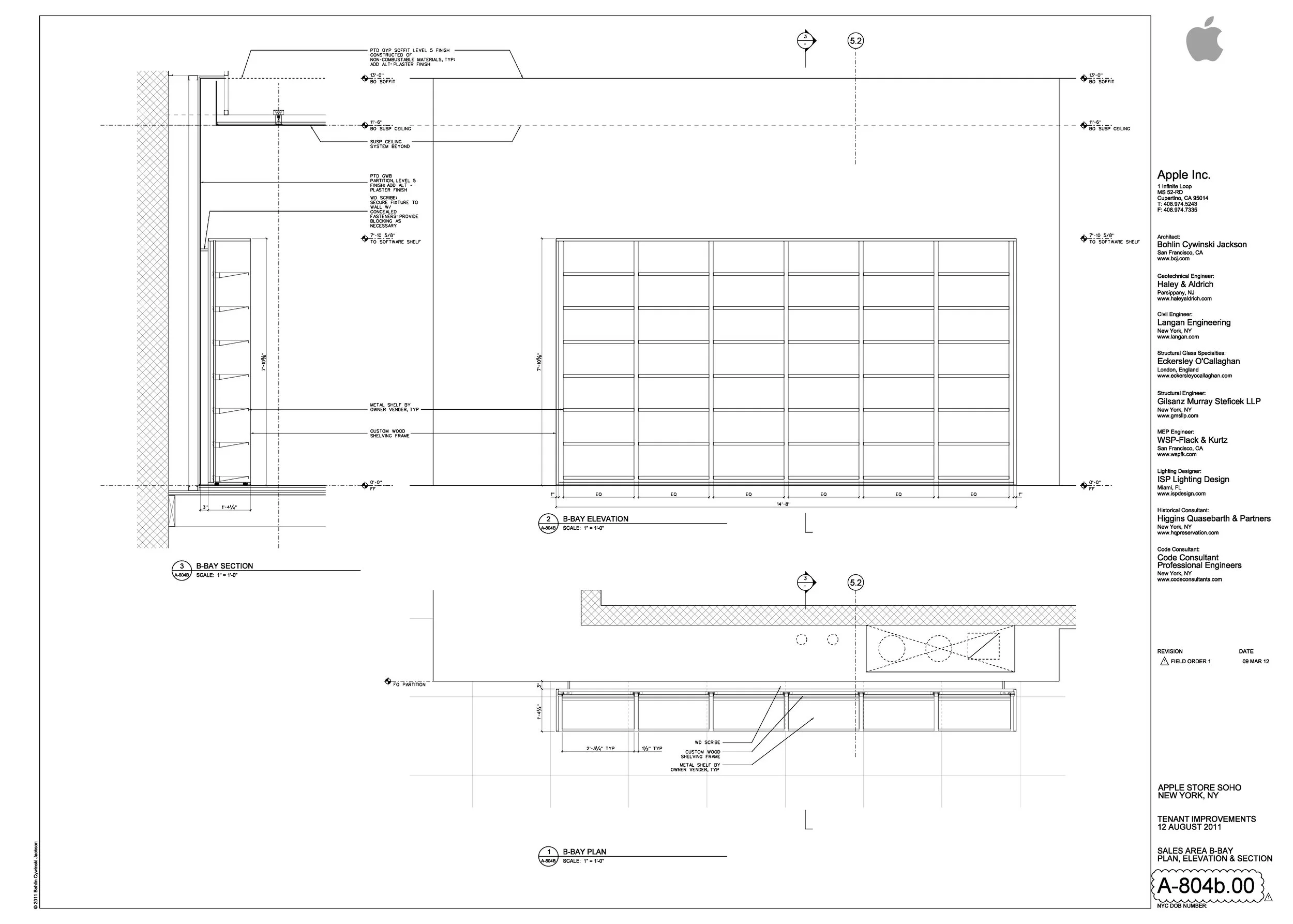
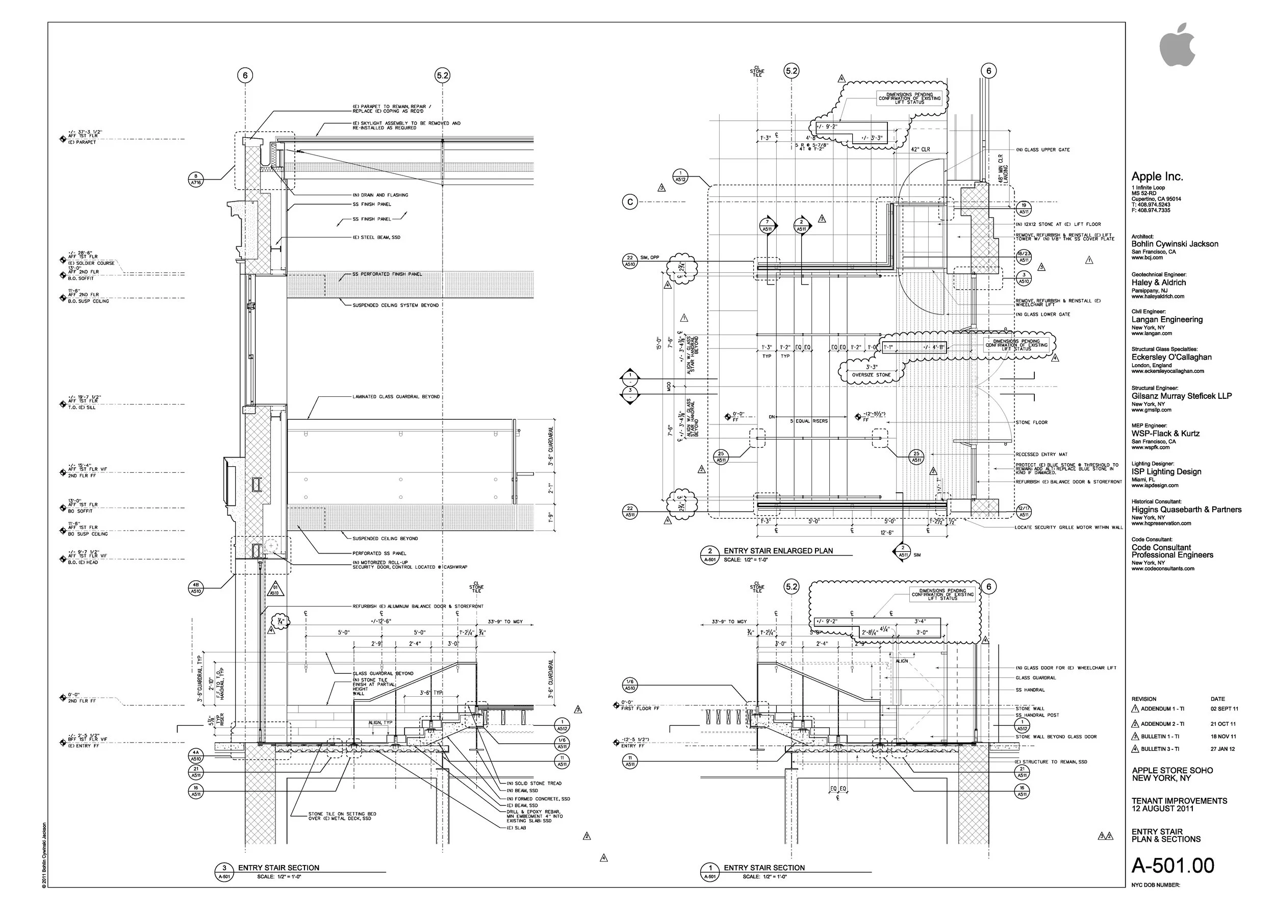
One of the defining architectural features of the store is the glass stair. At the time, this was the largest piece of glass used at any Apple Store in the United States. The 65ft glass balustrades cantilever from the second floor of this historic building. A column bay was also removed in order to give the space a more open, welcoming feel. The skylight from the original store was kept in place but retrofitted to accommodate new stainless steel panels and new mechanical systems. 

Team

Bohlin Cywinski Jackson, Eckersley O'Callaghan, WSP Flack & Kurtz, Shawmut Construction

2012A49.401RE.jpg
2012A49.402RE.jpg
2012A49.405RE.jpg
2012A49.422.jpg
2012A49.426.jpg
2012A49.406RE.jpg
2012A49.413RE.jpg
2012A49.407RE.jpg
2012A49.412RE.jpg
2012A49.409.jpg
2012A49.415.jpg
2012A49.416.jpg
2012A49.418.jpg
2012A49.427.jpg
2012A49.417RE.jpg
2012A49.420RE.jpg
2012A49.423.jpg
2012A49.425.jpg
Soho1.jpg
Soho2.jpg
Soho3.jpg
Soho4.jpg
12_0714 Soho_D1_RECORD_Page_04.jpg
12_0714 Soho_D1_RECORD_Page_05.jpg
12_0714 Soho_D1_RECORD_Page_06.jpg
12_0714 Soho_D1_RECORD_Page_07.jpg
12_0714 Soho_D1_RECORD_Page_09.jpg
12_0714 Soho_D1_RECORD_Page_10.jpg
12_0714 Soho_D1_RECORD_Page_11.jpg
Binder1_Page_001.jpg
Binder1_Page_002.jpg
Binder1_Page_003.jpg
Binder1_Page_006.jpg
Binder1_Page_004.jpg
Binder1_Page_007.jpg
Binder1_Page_005.jpg
Binder1_Page_008.jpg
Binder1_Page_011.jpg
Binder1_Page_009.jpg
Binder1_Page_012.jpg
Binder1_Page_010.jpg
Binder1_Page_013.jpg
Binder1_Page_016.jpg
Binder1_Page_014.jpg
Binder1_Page_017.jpg
Binder1_Page_015.jpg
Binder1_Page_018.jpg
Binder1_Page_021.jpg
Binder1_Page_019.jpg
Binder1_Page_022.jpg
Binder1_Page_020.jpg
Binder1_Page_023.jpg
Binder1_Page_026.jpg
Binder1_Page_024.jpg
Binder1_Page_027.jpg
Binder1_Page_025.jpg
Binder1_Page_028.jpg
Binder1_Page_031.jpg
Binder1_Page_029.jpg
Binder1_Page_032.jpg
Binder1_Page_030.jpg
Binder1_Page_033.jpg
Binder1_Page_036.jpg
Binder1_Page_034.jpg
Binder1_Page_037.jpg
Binder1_Page_035.jpg
Binder1_Page_038.jpg
Binder1_Page_040.jpg
Binder1_Page_039.jpg
Binder1_Page_041.jpg
Binder1_Page_040.jpg
Binder1_Page_042.jpg
Binder1_Page_043.jpg
Binder1_Page_044.jpg
Binder1_Page_045.jpg
Binder1_Page_051.jpg
Binder1_Page_046.jpg
Binder1_Page_052.jpg
Binder1_Page_047.jpg
Binder1_Page_053.jpg
Binder1_Page_048.jpg
Binder1_Page_054.jpg
Binder1_Page_049.jpg
Binder1_Page_055.jpg
Binder1_Page_050.jpg
Binder1_Page_056.jpg
Binder1_Page_057.jpg
Binder1_Page_058.jpg
Binder1_Page_059.jpg
Binder1_Page_060.jpg
Binder1_Page_061.jpg
Binder1_Page_071.jpg
Binder1_Page_062.jpg
Binder1_Page_072.jpg
Binder1_Page_063.jpg
Binder1_Page_073.jpg
Binder1_Page_064.jpg
Binder1_Page_074.jpg
Binder1_Page_065.jpg
Binder1_Page_075.jpg
Binder1_Page_066.jpg
Binder1_Page_076.jpg
Binder1_Page_067.jpg
Binder1_Page_077.jpg
Binder1_Page_068.jpg
Binder1_Page_078.jpg
Binder1_Page_069.jpg
Binder1_Page_079.jpg
Binder1_Page_070.jpg
Binder1_Page_080.jpg
Binder1_Page_081.jpg
Binder1_Page_102.jpg
Binder1_Page_082.jpg
Binder1_Page_091.jpg
Binder1_Page_083.jpg
Binder1_Page_092.jpg
Binder1_Page_084.jpg
Binder1_Page_093.jpg
Binder1_Page_085.jpg
Binder1_Page_094.jpg
Binder1_Page_086.jpg
Binder1_Page_095.jpg
Binder1_Page_087.jpg
Binder1_Page_096.jpg
Binder1_Page_088.jpg
Binder1_Page_097.jpg
Binder1_Page_089.jpg
Binder1_Page_098.jpg
Binder1_Page_090.jpg
Binder1_Page_099.jpg
Binder1_Page_100.jpg
Binder1_Page_101.jpg
003-09385-1_Dim Stone Submittal 3.jpg
055800-15-03 Submittal Review_Page_01.jpg
055800-15-03 Submittal Review_Page_02.jpg
055800-15-03 Submittal Review_Page_03.jpg
055800-15-03 Submittal Review_Page_04.jpg
055800-15-03 Submittal Review_Page_05.jpg
055800-15-03 Submittal Review_Page_06.jpg
055800-15-03 Submittal Review_Page_07.jpg
055800-15-03 Submittal Review_Page_08.jpg
055800-15-03 Submittal Review_Page_09.jpg
055800-29-09 Submittal Review 5.jpg
055800-15-03 Submittal Review_Page_10.jpg
055800-15-03 Submittal Review_Page_11.jpg
055800-15-03 Submittal Review_Page_12.jpg
055800-15-03 Submittal Review_Page_13.jpg
055800-15-03 Submittal Review_Page_14.jpg
055800-15-03 Submittal Review_Page_15.jpg
055800-15-03 Submittal Review_Page_16.jpg
055800-15-03 Submittal Review_Page_17.jpg
20120511134429_Page_1.jpg
20120511134429_Page_2.jpg
20120511134429_Page_3.jpg
20120511134429_Page_4.jpg
20120511134429_Page_5.jpg
20120511134429_Page_6.jpg
20120511134429_Page_7.jpg
20120511134429_Page_8.jpg
Apple SoHo Balustrade Restraint_Page_1.jpg
Apple SoHo Balustrade Restraint_Page_2.jpg
Apple SoHo Balustrade Restraint_Page_3.jpg
Handrail Base 001.jpg
Balustrade Study A_Page_1.jpg
Balustrade Study A_Page_2.jpg
Balustrade Study A_Page_3.jpg
Balustrade Study A_Page_4.jpg
Genius Monitor Cutouts_Page_3.jpg
Genius Monitor Cutouts_Page_1.jpg
Genius Monitor Cutouts_Page_2.jpg
OCE 885.jpg
OCE 886.jpg
Slot Diffuser_Page_1.jpg
Slot Diffuser_Page_2.jpg
Slot Diffuser_Page_3.jpg
SoHo - Perf Diffuser.jpg

Powered by Squarespace.