• Forager California
  • Nike
  • Adobe
  • OHIO Design
  • Bohlin Cywinski Jackson

Nicholas V. Ruiz

  • Forager California
  • Nike
  • Adobe
  • OHIO Design
  • Bohlin Cywinski Jackson

Adobe Shoreditch

The offices are located on the ‘Silicon Roundabout’ in London’s Tech City, a hive of innovation and the third-largest technology cluster in the world after San Francisco and New York City.

Specifically, our new home is in the White Collar Factory, a beautiful and cutting edge development by Derwent London, one of London’s most innovative office specialist property regenerators. Derwent London is well known for its design-led philosophy with sustainability at the heart of every development – a great match for Adobe.

We’ll take up the 7th, 8th and 13th floor of the 16-storey building which boasts high ceilings, abundant natural light and natural ventilation, thanks to concrete core cooling. And, as well as being a healthy place to work on the inside, there is plenty to do to keep fit and active with access to a roof terrace including a 150m running track and plenty of space to park our bicycles.

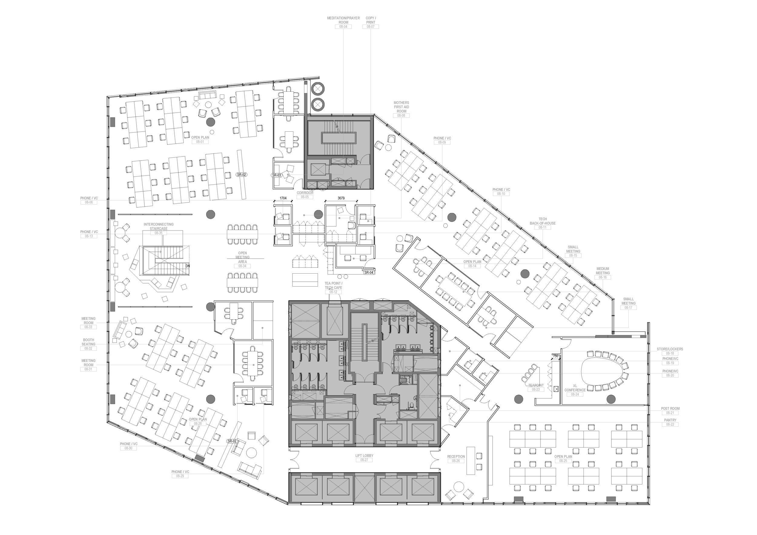
Our space is open plan, with meeting rooms, social hubs, a library, tech café and a games room. A major feature includes a ‘Customer Experience Centre’ – providing UK and European customers with an environment to experience our technology.

Team

Adobe Workplace Experience, Gensler, The Furniture Practice, Tsunami Axis, Amalgam, Cushman & Wakefield

Adobe Shoreditch G 006.jpeg
Adobe Shoreditch G 002.jpeg
Adobe Shoreditch G 003.jpeg
Adobe Shoreditch G 004.jpeg
Adobe Shoreditch G 005.jpeg
Adobe Shoreditch G 007.jpeg
Adobe Shoreditch G 008.jpeg
Adobe Shoreditch G 009.jpeg
Adobe Shoreditch G 010.jpeg
Adobe Shoreditch G 020.jpeg
Adobe Shoreditch G 011.jpeg
Adobe Shoreditch G 013.jpeg
Adobe Shoreditch G 018.jpeg
Adobe Shoreditch G 019.jpeg
Adobe Shoreditch G 012.jpeg
Adobe Shoreditch G 014.jpeg
Adobe Shoreditch G 015.jpeg
Adobe Shoreditch G 016.jpeg
Adobe Shoreditch G 017.jpeg
Adobe Shoreditch G 021.jpeg
Adobe Shoreditch Plans_Page_3.jpg
Adobe Shoreditch Plans_Page_2.jpg
Adobe Shoreditch Plans_Page_1.jpg

Powered by Squarespace.